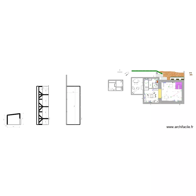
RDC-12-09-2025
Plan de

Description
Maison avec variante Salle d'eau du RDC
Détails du plan
- Plan commencé le 12/09/2025 à 14:22 par JP2244
- Modifié le 27/09/2025 à 11:08 par JP2244
- Partage : Utilisation
Mots clés
Liste des pièces
Aucune pièce n'a été créé sur ce plan.
Liste des objets
Lien vers ce plan
Lien pour partager le plan RDC-12-09-2025
Image du plan
Copier et coller le code ci dessous
Partagez ce plan
Vous aimez ce plan ?
Cliquez sur J'aime et gagnez des fonctionnalités