marmotte 2
Plan de

Détails du plan
- Plan commencé le 22/02/2025 à 11:49 par MaxMomo
- Modifié le 10/05/2025 à 18:05 par MaxMomo
- Partage : Utilisation
Mots clés
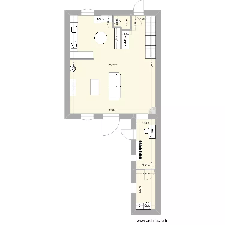
Liste des pièces
Aucune pièce n'a été créé sur ce plan.
Liste des objets
| Nom de l'objet | Nombre |
|---|---|
| Armoire - penderie 150 cm | 1 |
| Bureau 100 X 50 cm | 1 |
| Canapé 3 places | 1 |
| Cheminée d'angle | 1 |
| Escalier droit | 1 |
| Evier 1 vasque | 1 |
| Lave linge hublot | 1 |
| Meuble tiroir | 1 |
| Piano clavier | 1 |
| Plan de travail | 4 |
| Plaque induction 4 foyers | 1 |
| Poêle à bois ovale | 1 |
| Refrigerateur congelateur | 1 |
| Sèche linge | 1 |
| Table basse | 1 |
| Table basse | 1 |
| Téléviseur avec meuble | 1 |
| WC suspendu | 1 |
Lien vers ce plan
Lien pour partager le plan marmotte 2
Image du plan
Copier et coller le code ci dessous
Partagez ce plan
Vous aimez ce plan ?
Cliquez sur J'aime et gagnez des fonctionnalités