BOULI

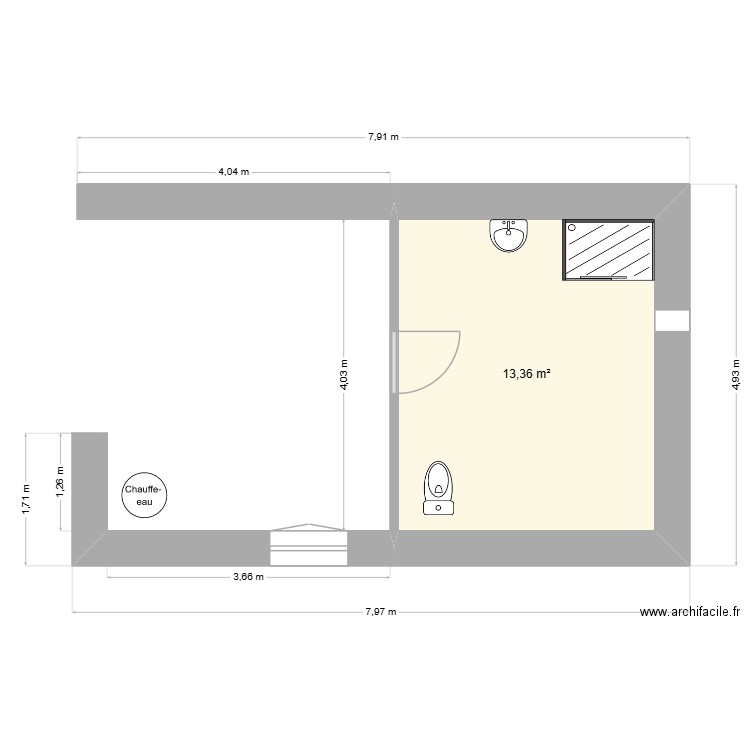
Plan de 1 pièce et 13 m2.

Détails du plan

  • Plan commencé le 04/11/25 par zepiaf
  • Modifié le 04/11/25 par zepiaf
  • Partage : Utilisation

Mots clés

A construire A louer A rénover A vendre Appartement Atelier Bureau Chez moi Coupe Duplex Electricité Extension Facade Ferme Garage Jardin Loft Magasin Maison Piscine
  • Liste des pièces

  • Liste des objets

    Nom de l'objet Nombre
    Cabine douche 1
    Chauffe eau 1
    Lavabo 1
    WC standard 1

    Lien vers ce plan

    Lien pour partager le plan BOULI


    Image du plan

    Copier et coller le code ci dessous


    Partagez ce plan


    Vous aimez ce plan ?

    Cliquez sur J'aime et gagnez des fonctionnalités



    Signaler ce plan


    Plans de 1 pièce et de 10 à 20 m2

    Corner PRH comptoir

    par JohannaLemaitre

    Détails

    Corner PRH comptoir

    Corner PRH central

    par JohannaLemaitre

    Détails

    Corner PRH central

    fromagerie

    par alexine06

    Détails

    fromagerie

    capdenac-gare : propositon 2

    par camillebaldet

    Détails

    capdenac-gare : propositon 2

    capdenac-gare : propositon 1

    par camillebaldet

    Détails

    capdenac-gare : propositon 1

    chambre

    par tourie

    Détails

    chambre

    Labo BEL-air local (Essais Feu ILO / meringage)

    par DavidCB

    Détails

    Labo BEL-air local (Essais Feu ILO / meringage)

    Voir tout les plans de 1 pièce et de 10 à 20 m2


    Plans de 1 pièce

    plan garage

    par ChloDaSilva

    Détails

    plan garage

    Cellier / buanderie avec porte

    par Clauriot

    Détails

    Cellier / buanderie avec porte

    PLAN DE MASSE

    par laurentboulmot

    Détails

    PLAN DE MASSE

    Classe P2 8 groupes de 3 HOMO

    par PongoR

    Détails

    Classe P2 8 groupes de 3 HOMO

    Plan buanderie novembre 2025

    par geraldinecoutel

    Détails

    Plan buanderie novembre 2025

    LAFONT 2

    par domlejeune

    Détails

    LAFONT 2

    5454

    par jaboss

    Détails

    5454

    MAISON KOYCEGIZ

    par rrizza

    Détails

    MAISON KOYCEGIZ

    Voir tout les plans de 1 pièce


    Plans de 10 à 20 m2

    cuisine 1

    par Anne54

    Détails

    cuisine 1

    Extenstion 1

    par CYRIL48

    Détails

    Extenstion 1

    old blue room

    par KERGROS

    Détails

    old blue room

    ETAGE C

    par NHSM

    Détails

    ETAGE C

    Condorcet BIS

    par stephane VUONG

    Détails

    Condorcet BIS

    RDC

    par NHSM

    Détails

    RDC

    SABADELLO Etage

    par CEDRICTIRBOIS

    Détails

    SABADELLO Etage

    Bergerie

    par rogerseverine

    Détails

    Bergerie

    Voir tout les plans de 10 à 20 m2