chambre 3
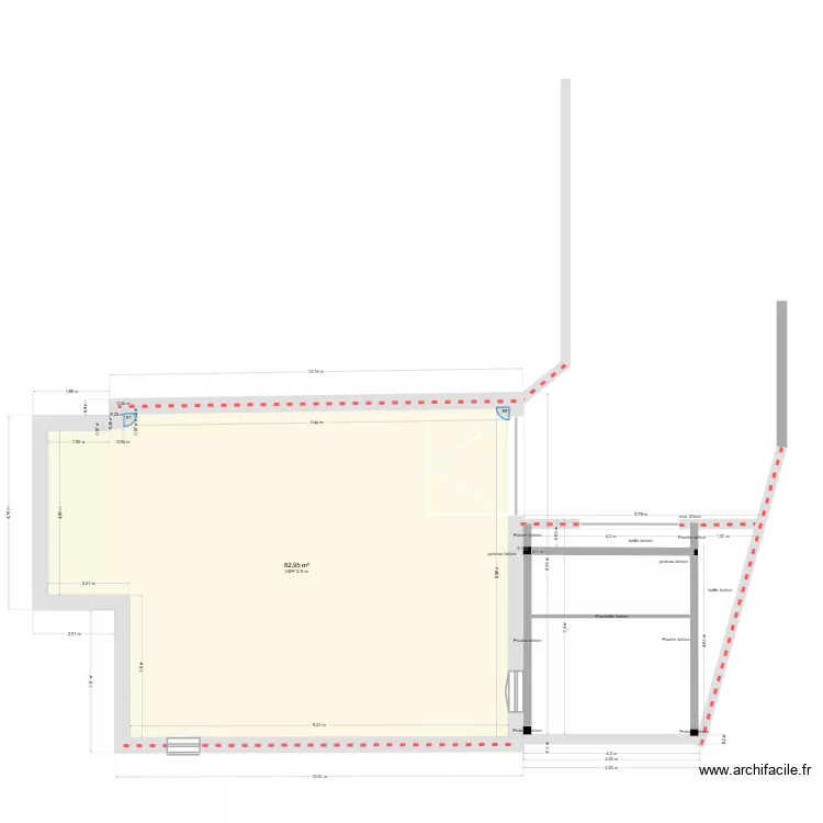
Plan de 4 et 176 m²

Détails du plan
- Plan commencé le 01/12/2025 à 19:23 par JACQUESLLORENTE
- Modifié le 04/12/2025 à 13:33 par JACQUESLLORENTE
- Partage : Utilisation
Mots clés
Liste des pièces
Liste des objets
| Nom de l'objet | Nombre |
|---|---|
| Texte | 9 |
| Armoire - penderie 200 cm | 3 |
| Congélateur armoire 200 L | 1 |
| Lave linge hublot | 1 |
| Lit queen size | 1 |
| Meuble 1 lavabo integré | 1 |
| Meuble cuisine 1 tiroir 2 portes | 1 |
| Meuble tiroir | 1 |
| Poteau béton | 5 |
| Receveur douche | 1 |
| Table de chevet | 2 |
| Téléviseur | 1 |
| Toiture 2 pans | 1 |
| Toiture monopente | 4 |
Lien vers ce plan
Lien pour partager le plan chambre 3
Image du plan
Copier et coller le code ci dessous
Partagez ce plan
Vous aimez ce plan ?
Cliquez sur J'aime et gagnez des fonctionnalités
Plans de 4 pièces et de 170 à 190 m2
Voir tout les plans de 4 pièces et de 170 à 190 m2
Plans de 4 pièces
Voir tout les plans de 4 pièces
Plans de 170 à 190 m2
Voir tout les plans de 170 à 190 m2