2024-07-22 Tunnel6 bas isolé aménagé C
Plan de

Description
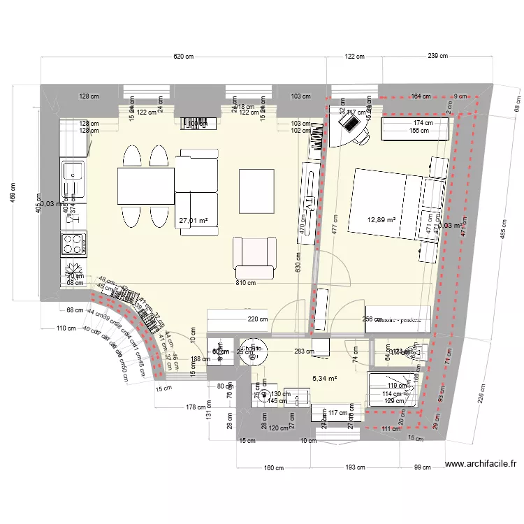
Appartement du RDC - 6 rue du Tunnel'
Détails du plan
- Plan commencé le 24/07/2024 à 11:22 par Moh Hyeres
- Modifié le 24/07/2024 à 11:22 par Moh Hyeres
- Partage : Utilisation
Mots clés
Liste des pièces
Aucune pièce n'a été créé sur ce plan.
Liste des objets
Lien vers ce plan
Lien pour partager le plan 2024-07-22 Tunnel6 bas isolé aménagé C
Image du plan
Copier et coller le code ci dessous
Partagez ce plan
Vous aimez ce plan ?
Cliquez sur J'aime et gagnez des fonctionnalités