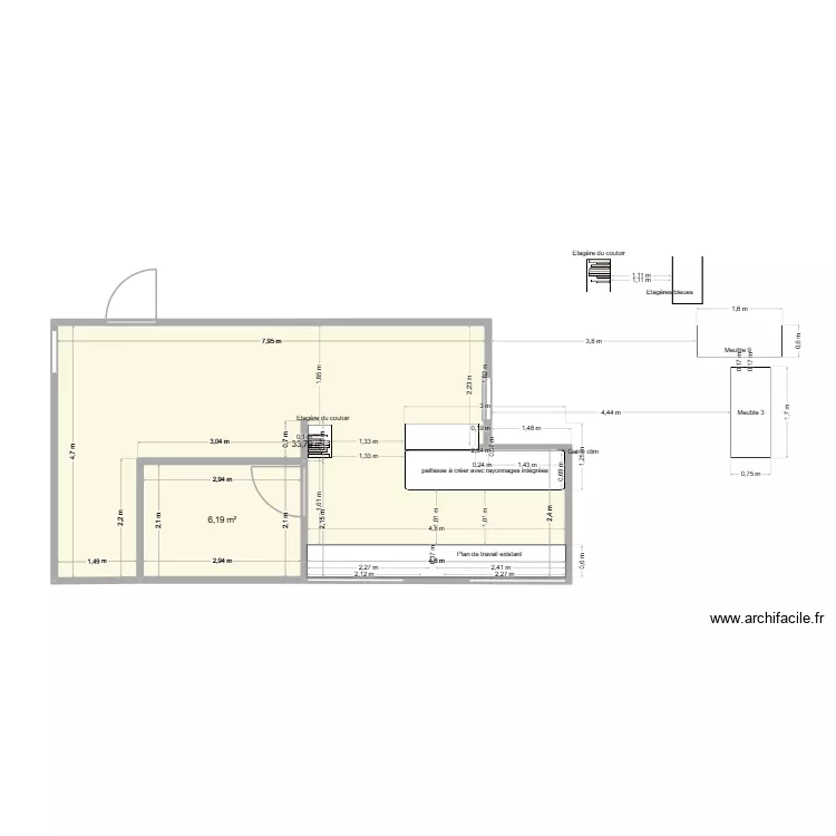
plan déballage Villeurbanne
Plan de 2 pièces et 40 m²

Détails du plan
- Plan commencé le 26/02/2026 à 15:39 par abcyp
- Modifié le 26/02/2026 à 17:30 par abcyp
- Partage : Utilisation
Mots clés
Liste des pièces
Liste des objets
| Nom de l'objet | Nombre |
|---|---|
| Bibliothèque | 2 |
| Etagère redimenssionnable | 1 |
| paillasse à créer avec rayonnages intégrées | 1 |
| Plan de travail | 1 |
| Poteau béton | 1 |
| Poteau métal | 2 |
| Table de bureau | 2 |
Lien vers ce plan
Lien pour partager le plan plan déballage Villeurbanne
Image du plan
Copier et coller le code ci dessous
Partagez ce plan
Vous aimez ce plan ?
Cliquez sur J'aime et gagnez des fonctionnalités
Plans de 2 pièces et de 35 à 45 m2
Voir tout les plans de 2 pièces et de 35 à 45 m2
Plans de 2 pièces
Voir tout les plans de 2 pièces
Plans de 35 à 45 m2
Voir tout les plans de 35 à 45 m2