presbytere
Plan de

Description
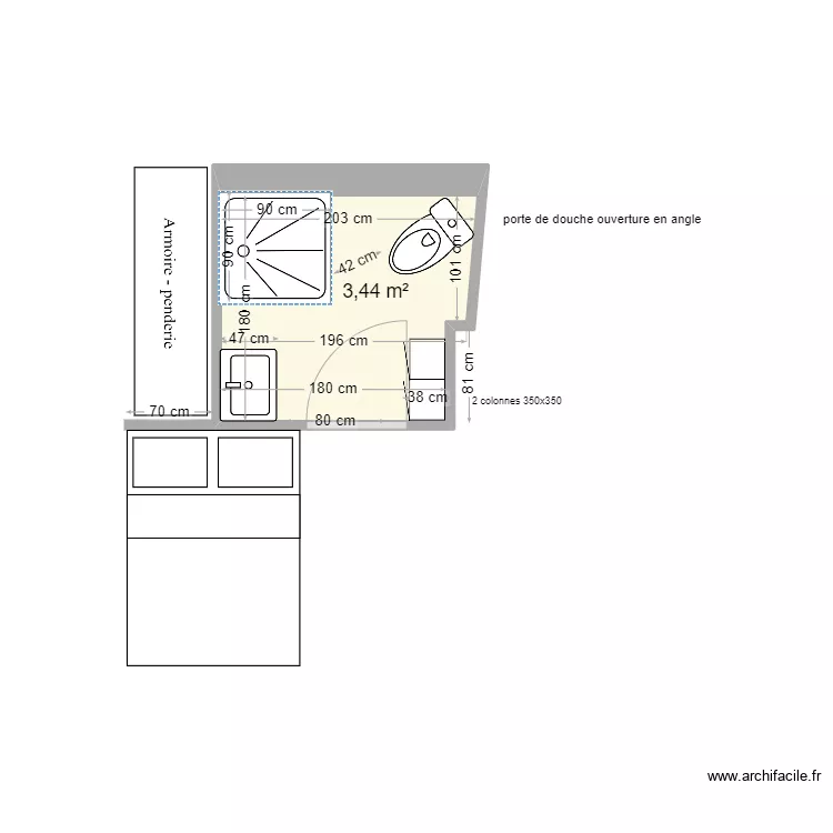
salle de bain
Détails du plan
- Plan commencé le 07/03/2024 à 08:34 par jeronimo37320
- Modifié le 13/03/2024 à 16:19 par jeronimo37320
- Partage : Utilisation
Mots clés
Liste des pièces
Aucune pièce n'a été créé sur ce plan.
Liste des objets
| Nom de l'objet | Nombre |
|---|---|
| Texte | 2 |
| Armoire - penderie 200 cm | 1 |
| Lit double standard | 1 |
| Meuble 1 lavabo integré | 1 |
| Meuble colonne | 2 |
| Receveur douche | 1 |
| WC standard | 1 |
Lien vers ce plan
Lien pour partager le plan presbytere
Image du plan
Copier et coller le code ci dessous
Partagez ce plan
Vous aimez ce plan ?
Cliquez sur J'aime et gagnez des fonctionnalités