chambre parentale
Plan de 2 et 16 m²

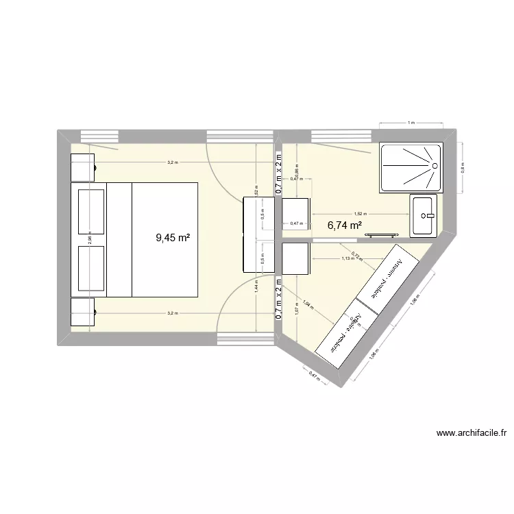
Détails du plan
- Plan commencé le 11/04/2026 à 16:22 par Lucieraph
- Modifié le 11/04/2026 à 16:27 par Lucieraph
- Partage : Utilisation
Mots clés
Liste des pièces
Liste des objets
| Nom de l'objet | Nombre |
|---|---|
| Armoire - penderie 150 cm | 2 |
| Commode tiroirs 120 x 50 cm | 1 |
| Lit King Size | 1 |
| Meuble 1 lavabo integré | 1 |
| Meuble tiroir | 2 |
| Receveur douche | 1 |
| Sèche-serviettes électrique à inertie 1000 W | 1 |
| Table de chevet | 2 |
Lien vers ce plan
Lien pour partager le plan chambre parentale
Image du plan
Copier et coller le code ci dessous
Partagez ce plan
Vous aimez ce plan ?
Cliquez sur J'aime et gagnez des fonctionnalités
Plans de 2 pièces et de 10 à 20 m2
Voir tout les plans de 2 pièces et de 10 à 20 m2
Plans de 2 pièces
Voir tout les plans de 2 pièces
Plans de 10 à 20 m2
Voir tout les plans de 10 à 20 m2