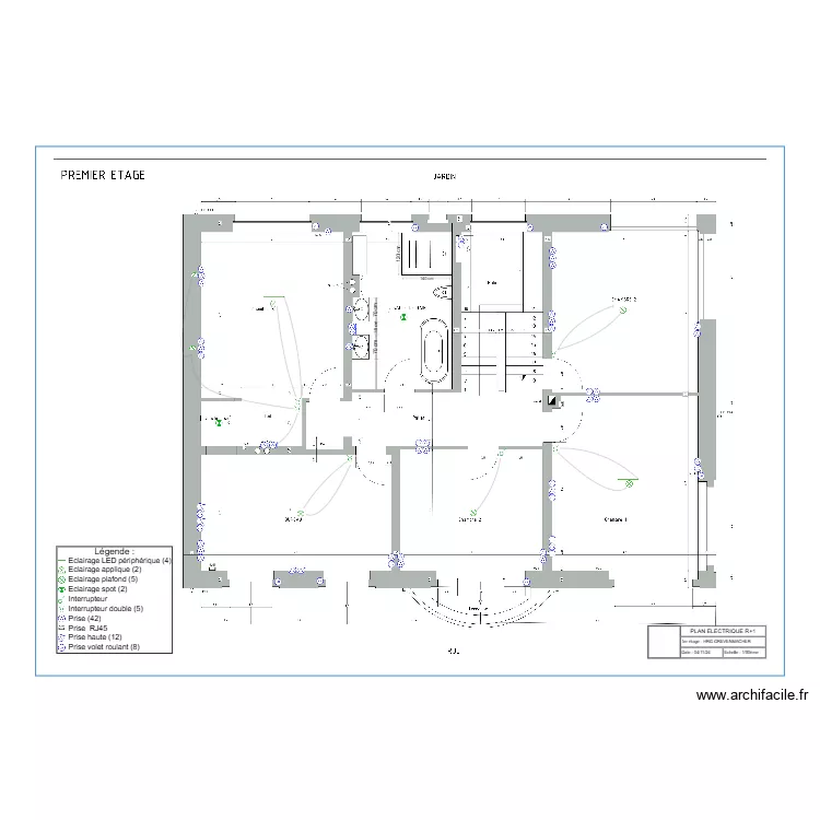
PLAN R+1 ELEC - HRG - GREVENMACHER
Plan de

Détails du plan
- Plan commencé le 12/11/2024 à 21:26 par James PHILIPPE
- Modifié le 27/11/2024 à 00:00 par James PHILIPPE
- Partage : Utilisation
Mots clés
Liste des pièces
Aucune pièce n'a été créé sur ce plan.
Liste des objets
| Nom de l'objet | Nombre |
|---|---|
| Légende | 1 |
| Baignoire îlot ovale | 1 |
| Cartouche 1 | 1 |
| Eclairage applique | 2 |
| Eclairage plafond | 5 |
| Eclairage spot | 2 |
| Eclairage Tube à fluorescence | 4 |
| Interrupteur | 1 |
| Interrupteur double | 5 |
| Meuble lavabo intégré | 2 |
| Meuble tiroir | 1 |
| Prise | 42 |
| Prise RJ45 | 1 |
| Prise haute | 12 |
| Prise volet roulant | 8 |
| Receveur douche | 1 |
| Sèche-serviettes électrique à inertie 1000 W | 1 |
| WC suspendu | 1 |
Lien vers ce plan
Lien pour partager le plan PLAN R+1 ELEC - HRG - GREVENMACHER
Image du plan
Copier et coller le code ci dessous
Partagez ce plan
Vous aimez ce plan ?
Cliquez sur J'aime et gagnez des fonctionnalités