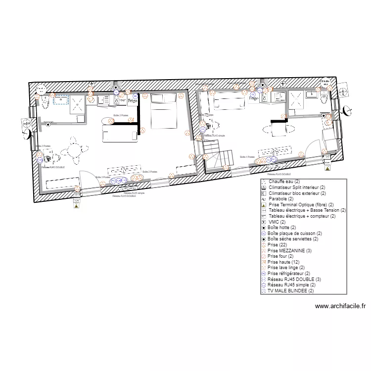
PC DU T1 ET T2
Plan de

Détails du plan
- Plan commencé le 01/06/2024 à 10:30 par PIERROT1470
- Modifié le 02/06/2024 à 20:35 par PIERROT1470
- Partage : Lecture
Mots clés
Liste des pièces
Aucune pièce n'a été créé sur ce plan.
Liste des objets
Lien vers ce plan
Lien pour partager le plan PC DU T1 ET T2
Image du plan
Copier et coller le code ci dessous
Partagez ce plan
Vous aimez ce plan ?
Cliquez sur J'aime et gagnez des fonctionnalités