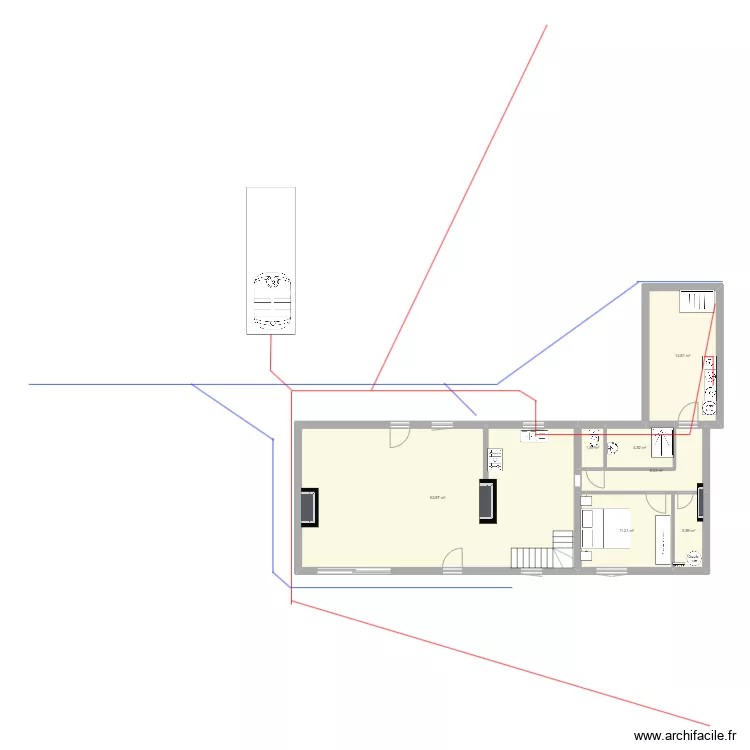
rdc
Plan de

Détails du plan
- Plan commencé le 15/05/2024 à 08:43 par popyet
- Modifié le 15/05/2024 à 08:43 par popyet
- Partage : Utilisation
Mots clés
Liste des pièces
Aucune pièce n'a été créé sur ce plan.
Liste des objets
| Nom de l'objet | Nombre |
|---|---|
| Armoire - penderie 200 cm | 1 |
| Chauffe eau | 1 |
| Cheminée | 3 |
| Collecteur 6 départs | 1 |
| Escalier quart tournant | 1 |
| Évier 2 bacs | 1 |
| Fosse septique env. 3m3 | 1 |
| Lavabo | 1 |
| Lave linge hublot | 1 |
| Lit queen size | 1 |
| Meuble 2 vasques | 1 |
| Piano de cuisson 5 foyers | 1 |
| Receveur douche | 1 |
| Receveur douche | 1 |
| Sèche linge | 1 |
| Table de chevet | 2 |
| WC standard | 1 |
Lien vers ce plan
Lien pour partager le plan rdc
Image du plan
Copier et coller le code ci dessous
Partagez ce plan
Vous aimez ce plan ?
Cliquez sur J'aime et gagnez des fonctionnalités