SIMON ELEC
Plan de

Détails du plan
- Plan commencé le 06/02/2026 à 11:11 par SARL ROIRAND
- Modifié le 06/02/2026 à 15:37 par SARL ROIRAND
- Partage : Utilisation
Mots clés
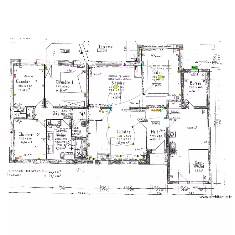
Liste des pièces
Aucune pièce n'a été créé sur ce plan.
Liste des objets
| Nom de l'objet | Nombre |
|---|---|
| Texte | 1 |
| Eclairage plafond | 2 |
| Eclairage spot | 8 |
| Interrupteur | 6 |
| Prise | 26 |
| Prise four | 1 |
| Prise HOTTE | 1 |
| Prise lave vaisselle | 1 |
| Prise M.O | 1 |
| Prise réfrigérateur | 1 |
| Prise réseau RJ45 | 3 |
| Prise USB | 3 |
| Prise volet roulant | 5 |
Lien vers ce plan
Lien pour partager le plan SIMON ELEC
Image du plan
Copier et coller le code ci dessous
Partagez ce plan
Vous aimez ce plan ?
Cliquez sur J'aime et gagnez des fonctionnalités