RDC - Beersel
Plan de 0 pièce et 0 m2.

Description
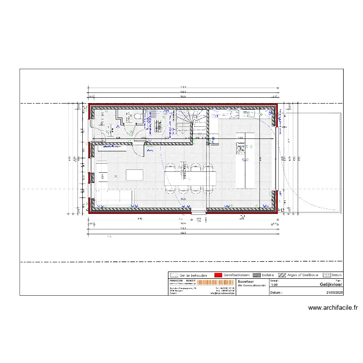
1 ligne direct de 6 5G carré dehors facade droite pour la pompe a chaleur
1 prise tondeuse, 1 prise cabane
cecerre veut mettre une boucle d'eau chaude, il faudra des boutons poussoir
Détails du plan
- Plan commencé le 25/01/2026 à 15:17 par AlexC1
- Modifié le 19/02/2026 à 09:01 par AlexC1
- Partage : Utilisation
Mots clés
Liste des pièces
Aucune pièce n'a été créé sur ce plan.
Liste des objets
| Nom de l'objet | Nombre |
|---|---|
| Eclairage applique | 11 |
| Eclairage plafond | 7 |
| Interrupteur | 14 |
| Interrupteur double va et vient | 2 |
| Point lumineux | 5 |
| Prise | 26 |
| Prise | 2 |
| Prise RJ45 | 3 |
| Prise 20 A | 6 |
| Prise four | 2 |
| Prise haute | 3 |
| Prise lave vaisselle | 1 |
| Prise plaque de cuisson | 1 |
| Prise réfrigérateur | 1 |
| Tableau 3x18 | 1 |
Lien vers ce plan
Lien pour partager le plan RDC - Beersel
Image du plan
Copier et coller le code ci dessous
Partagez ce plan
Vous aimez ce plan ?
Cliquez sur J'aime et gagnez des fonctionnalités