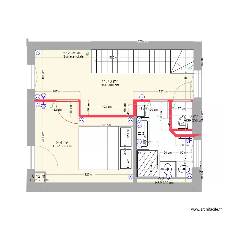
BOUSCAT R+1 Cloisons portes prises interrupteurs
Plan de

Détails du plan
- Plan commencé le 06/07/2024 à 12:51 par PATHA
- Modifié le 06/07/2024 à 13:17 par PATHA
- Partage : Utilisation
Mots clés
Liste des pièces
Aucune pièce n'a été créé sur ce plan.
Liste des objets
| Nom de l'objet | Nombre |
|---|---|
| Texte | 1 |
| Cabine douche | 1 |
| Escalier quart tournant | 1 |
| Interrupteur | 3 |
| Interrupteur avec voyant | 2 |
| Lave linge ouverture dessus | 2 |
| Lit queen size | 1 |
| Meuble 1 lavabo integré | 1 |
| Meuble colonne | 1 |
| Prise | 13 |
| Prise 20 A | 3 |
| Sèche-serviettes électrique à inertie 1000 W | 1 |
| WC suspendu | 1 |
Lien vers ce plan
Lien pour partager le plan BOUSCAT R+1 Cloisons portes prises interrupteurs
Image du plan
Copier et coller le code ci dessous
Partagez ce plan
Vous aimez ce plan ?
Cliquez sur J'aime et gagnez des fonctionnalités