tuillerie
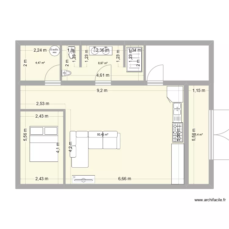
Plan de 4 et 70 m²

Description
aménagement
Détails du plan
- Plan commencé le 11/03/2026 à 16:59 par lepronnicolas
- Modifié le 12/03/2026 à 19:41 par lepronnicolas
- Partage : Utilisation
Mots clés
Liste des pièces
Liste des objets
| Nom de l'objet | Nombre |
|---|---|
| Bidet | 1 |
| Canapé d'angle gauche | 1 |
| Chauffe eau | 1 |
| Évier 2 bacs | 1 |
| Lit queen size | 1 |
| Meuble 2 vasques | 1 |
| Meuble cuisine coin bas | 1 |
| Piano de cuisson 6 foyers | 1 |
| Plan de travail | 1 |
| Receveur douche | 1 |
| Téléviseur avec meuble | 1 |
| WC standard | 1 |
Lien vers ce plan
Lien pour partager le plan tuillerie
Image du plan
Copier et coller le code ci dessous
Partagez ce plan
Vous aimez ce plan ?
Cliquez sur J'aime et gagnez des fonctionnalités
Plans de 4 pièces et de 60 à 80 m2
Voir tout les plans de 4 pièces et de 60 à 80 m2
Plans de 4 pièces
Voir tout les plans de 4 pièces
Plans de 60 à 80 m2
Voir tout les plans de 60 à 80 m2