Grande salle de bain - 10 - 1 portes d'accès
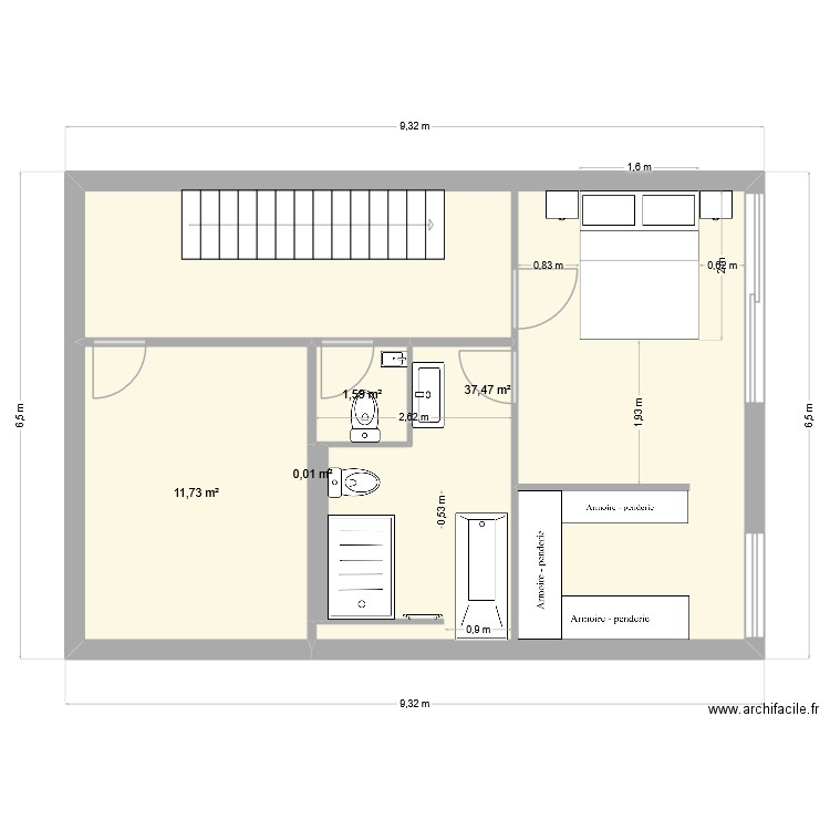
Plan de 5 pièces et 51 m²

Description
Positionner la douche, le dressing, les cloisons et la porte de la chambre Claira.
Détails du plan
- Plan commencé le 27/11/2025 à 12:34 par Maryse G
- Modifié le 27/11/2025 à 12:34 par Maryse G
- Partage : Utilisation
Mots clés
Liste des pièces
Liste des objets
| Nom de l'objet | Nombre |
|---|---|
| Armoire - penderie 200 cm | 3 |
| Baignoire rectangulaire | 1 |
| Escalier droit | 1 |
| Lave main | 1 |
| Lit queen size | 1 |
| Meuble 1 lavabo integré | 1 |
| Receveur douche | 1 |
| Sèche-serviettes électrique à inertie 1000 W | 1 |
| Table de chevet | 2 |
| WC standard | 2 |
Lien vers ce plan
Lien pour partager le plan Grande salle de bain - 10 - 1 portes d'accès
Image du plan
Copier et coller le code ci dessous
Partagez ce plan
Vous aimez ce plan ?
Cliquez sur J'aime et gagnez des fonctionnalités
Plans de 5 pièces et de 45 à 55 m2
Voir tout les plans de 5 pièces et de 45 à 55 m2
Plans de 5 pièces
Voir tout les plans de 5 pièces
Plans de 45 à 55 m2
Voir tout les plans de 45 à 55 m2