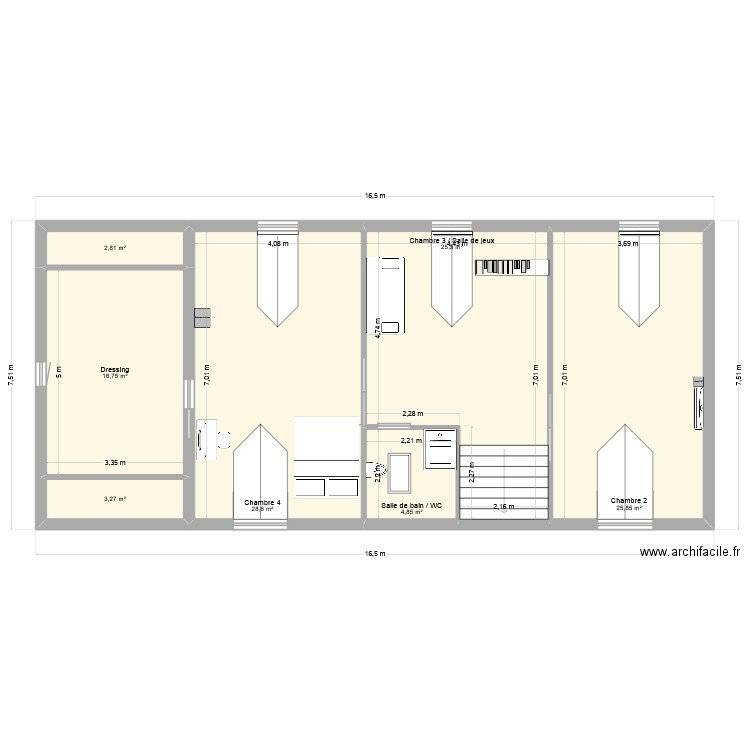
Etage (Grandes chambres) - 2025-10-08 (Implantation)
Plan de

Détails du plan
- Plan commencé le 08/10/2025 à 19:08 par Sylvaingg
- Modifié le 08/10/2025 à 19:29 par Sylvaingg
- Partage : Utilisation
Mots clés
Liste des pièces
Aucune pièce n'a été créé sur ce plan.
Liste des objets
| Nom de l'objet | Nombre |
|---|---|
| Banquette clic-clac 3 places | 1 |
| Bibliothèque | 1 |
| Chien assis | 5 |
| Climatiseur Split interieur | 1 |
| Coiffeuse 100 X 50 cm | 1 |
| Escalier droit | 1 |
| Fenêtre de toit | 1 |
| Lit queen size | 1 |
| Radiateur radiant 2000W | 3 |
| Receveur douche | 1 |
| WC suspendu | 1 |
Lien vers ce plan
Lien pour partager le plan Etage (Grandes chambres) - 2025-10-08 (Implantation)
Image du plan
Copier et coller le code ci dessous
Partagez ce plan
Vous aimez ce plan ?
Cliquez sur J'aime et gagnez des fonctionnalités