APPARTEMENT LEO ELEC
Plan de 14 et 167 m²

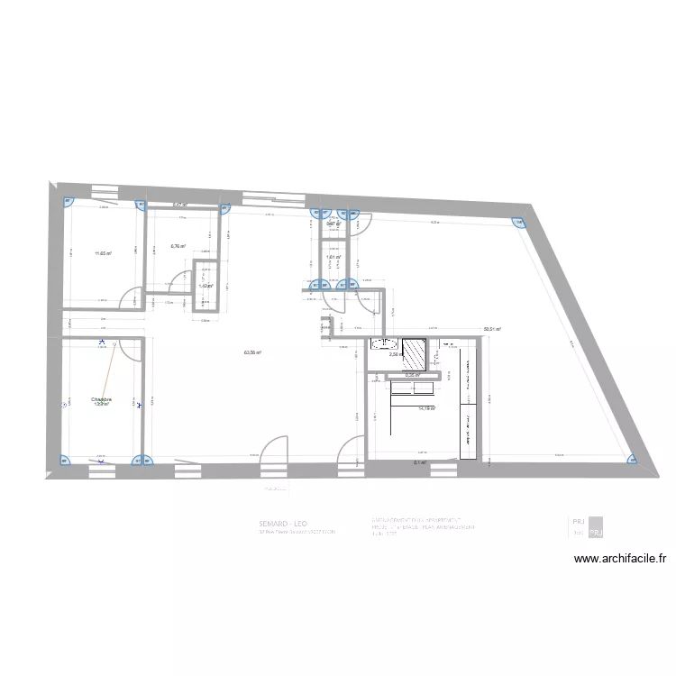
Détails du plan
- Plan commencé le 14/04/2026 à 10:50 par leobetemps
- Modifié le 30/04/2026 à 19:56 par leobetemps
- Partage : Utilisation
Mots clés
Liste des pièces
- Salle de bain
- Chambre
- Chambre
- Placard
- WC
- Chambre
- Salle de bain
- Salon
Liste des objets
| Nom de l'objet | Nombre |
|---|---|
| alim | 2 |
| Armoire - penderie 200 cm | 5 |
| Cabine douche | 1 |
| Canapé d'angle gauche | 1 |
| Chauffe eau | 1 |
| Eclairage plafond | 4 |
| Eclairage spot | 14 |
| Escalier quart tournant | 1 |
| Interrupteur | 4 |
| Interrupteur va et vient | 6 |
| Lit queen size | 1 |
| Meuble lavabo intégré | 1 |
| Prise | 31 |
| Table 6 - 8 pers 180 x 80 cm | 1 |
| Tableau électrique | 1 |
| Téléviseur avec meuble bas | 1 |
Lien vers ce plan
Lien pour partager le plan APPARTEMENT LEO ELEC
Image du plan
Copier et coller le code ci dessous
Partagez ce plan
Vous aimez ce plan ?
Cliquez sur J'aime et gagnez des fonctionnalités
Plans de 14 pièces et de 160 à 180 m2
Voir tout les plans de 14 pièces et de 160 à 180 m2
Plans de 14 pièces
Voir tout les plans de 14 pièces
Plans de 160 à 180 m2
Voir tout les plans de 160 à 180 m2