Michel après
Plan de 1 et 6 m²

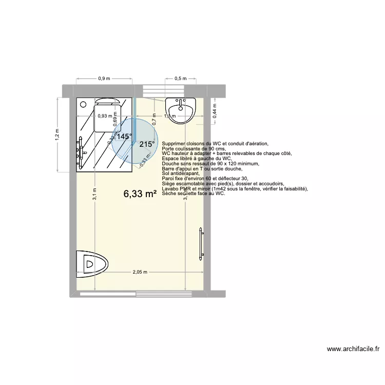
Description
Michel après
Détails du plan
- Plan commencé le 24/04/2026 à 16:33 par URBAM
- Modifié le 24/04/2026 à 16:33 par URBAM
- Partage : Modification
Mots clés
Liste des pièces
Liste des objets
| Nom de l'objet | Nombre |
|---|---|
| Texte | 1 |
| Chaise | 1 |
| Lavabo | 1 |
| Receveur douche extra plat | 1 |
| Robinet douche/bain | 1 |
| Sèche-serviettes électrique à inertie 1000 W | 2 |
| WC suspendu | 1 |
Lien vers ce plan
Lien pour partager le plan Michel après
Image du plan
Copier et coller le code ci dessous
Partagez ce plan
Vous aimez ce plan ?
Cliquez sur J'aime et gagnez des fonctionnalités
Plans de 1 pièce et de 0 à 10 m2
Voir tout les plans de 1 pièce et de 0 à 10 m2
Plans de 1 pièce
Voir tout les plans de 1 pièce
Plans de 0 à 10 m2
Voir tout les plans de 0 à 10 m2