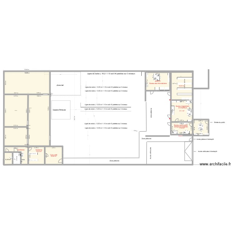
Plan de détail global
Plan de 0 pièce et 0 m2.

Détails du plan
- Plan commencé le 08/10/2025 à 17:21 par RESTSOS DU COEUR 02
- Modifié le 08/10/2025 à 22:50 par RESTSOS DU COEUR 02
- Partage : Utilisation
Mots clés
Liste des pièces
- Coin café
- Vestiares
Liste des objets
| Nom de l'objet | Nombre |
|---|---|
| Texte | 15 |
| Armoire - penderie 150 cm | 2 |
| Armoire portes coulissantes | 11 |
| Bureau rectangulaire 140 X 80 cm | 4 |
| Bureau rectangulaire 180 X 80 cm | 5 |
| Etagère redimenssionnable | 4 |
| Flêche | 3 |
| Meuble 1 lavabo integré | 1 |
| Meuble 2 lavabos | 1 |
| Poteau béton | 2 |
| Rectangle | 1 |
| Table basse | 4 |
| Table de bureau | 5 |
| Urinoir | 1 |
| WC standard | 2 |
Lien vers ce plan
Lien pour partager le plan Plan de détail global
Image du plan
Copier et coller le code ci dessous
Partagez ce plan
Vous aimez ce plan ?
Cliquez sur J'aime et gagnez des fonctionnalités
Plans de 0 pièce
Voir tout les plans de 0 pièce
Plans de 420 à 440 m2
Voir tout les plans de 420 à 440 m2