cusine
Plan de 0 pièce et 0 m2.

Détails du plan
- Plan commencé le 15/02/2026 à 10:58 par DSAJE
- Modifié le 15/02/2026 à 11:37 par DSAJE
- Partage : Lecture
Mots clés
Liste des pièces
Aucune pièce n'a été créé sur ce plan.
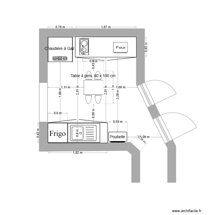
Liste des objets
| Nom de l'objet | Nombre |
|---|---|
| Chaudière à Gaz | 1 |
| Évier 1 bac avec meuble | 1 |
| Four | 1 |
| Meuble cuisine 2 portes | 2 |
| Plaque électrique 2 foyers | 1 |
| Poubelle | 1 |
| Réfrigérateur | 1 |
| Table 4 - 6 pers. 80 x 125 cm | 1 |
Lien vers ce plan
Lien pour partager le plan cusine
Image du plan
Copier et coller le code ci dessous
Partagez ce plan
Vous aimez ce plan ?
Cliquez sur J'aime et gagnez des fonctionnalités