Greg13008 2-10
Plan de

Description
Achat futur
Détails du plan
- Plan commencé le 26/04/2025 à 13:33 par mcy13008
- Modifié le 28/04/2025 à 11:34 par mcy13008
- Partage : Utilisation
Mots clés
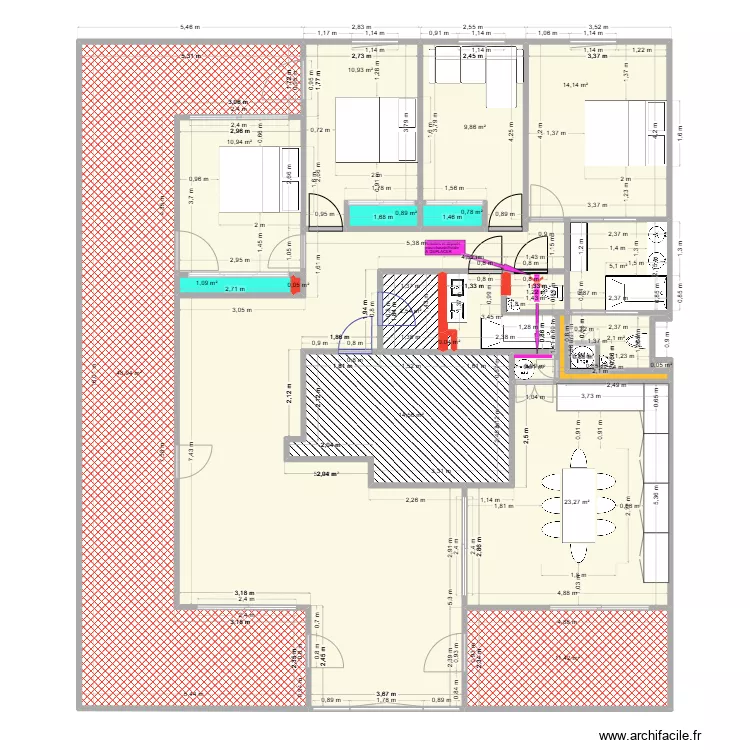
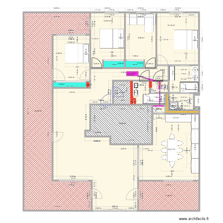
Liste des pièces
Aucune pièce n'a été créé sur ce plan.
Liste des objets
| Nom de l'objet | Nombre |
|---|---|
| Texte | 1 |
| Baignoire rectangulaire | 2 |
| Bar | 1 |
| Canapé méridienne droite | 1 |
| Chauffe eau | 1 |
| Flêche | 2 |
| Lave main d'angle | 2 |
| Lit queen size | 3 |
| Meuble 2 lavabos | 1 |
| Meuble 2 vasques | 1 |
| Meuble cuisine 2 portes | 4 |
| Meuble tiroir | 1 |
| Sèche linge | 1 |
| Table 6 - 8 pers 180 x 80 cm | 1 |
| WC suspendu | 2 |
Lien vers ce plan
Lien pour partager le plan Greg13008 2-10
Image du plan
Copier et coller le code ci dessous
Partagez ce plan
Vous aimez ce plan ?
Cliquez sur J'aime et gagnez des fonctionnalités