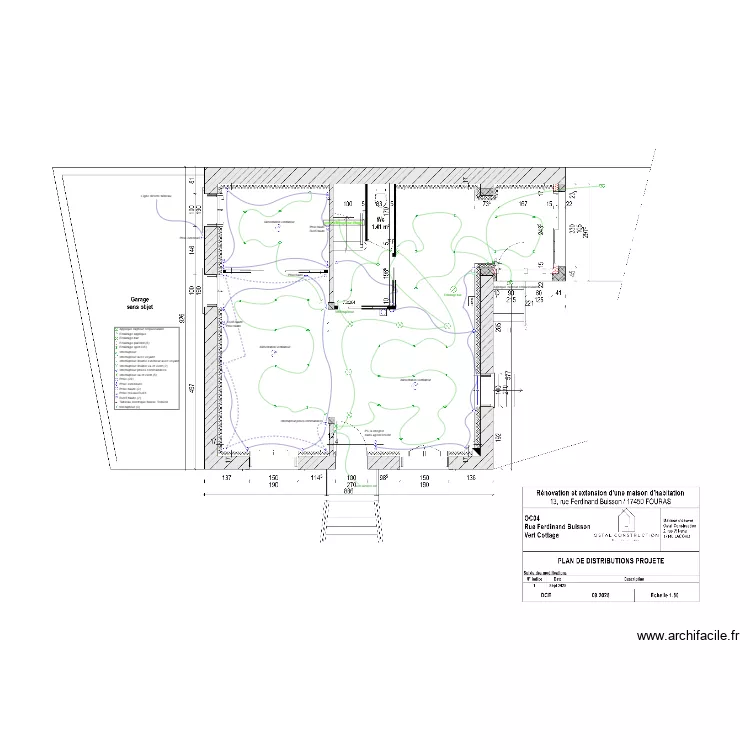
OC04- Plan EXE electrique
Plan de

Détails du plan
- Plan commencé le 14/09/2025 à 11:28 par ostalconstruction
- Modifié le 29/09/2025 à 14:49 par ostalconstruction
- Partage : Utilisation
Mots clés
Liste des pièces
Aucune pièce n'a été créé sur ce plan.
Liste des objets
| Nom de l'objet | Nombre |
|---|---|
| Texte | 2 |
| Légende | 1 |
| Eclairage applique | 2 |
| Eclairage plafond | 6 |
| Eclairage spot | 35 |
| Interrupteur | 2 |
| Interrupteur avec voyant | 1 |
| Interrupteur double avec voyant | 1 |
| Interrupteur double va et vient | 2 |
| Interrupteur va et vient | 8 |
| Prise | 64 |
| Prise réseau RJ45 | 6 |
| Tableau électrique Basse Tension | 1 |
Lien vers ce plan
Lien pour partager le plan OC04- Plan EXE electrique
Image du plan
Copier et coller le code ci dessous
Partagez ce plan
Vous aimez ce plan ?
Cliquez sur J'aime et gagnez des fonctionnalités