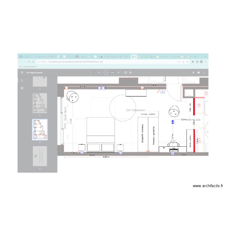
Chambre 1 TMA1 Bis
Plan de

Description
Chambre :
Electricité : moins 1PRJ45 et 1 point lum plafond
Plus 1PTV, 1P, 1PUSB, 1 point lum pour penderie
Dressing :
Electricité : moins 1P, ajout de 3 points plafond
Bilan : plus 1PTV et 3 points spots
Moins value : tout l'ensemble penderie
Révisé le 03/04/24
Détails du plan
- Plan commencé le 14/10/2025 à 14:43 par Horizon06
- Modifié le 14/10/2025 à 20:40 par Horizon06
- Partage : Utilisation
Mots clés
Liste des pièces
Aucune pièce n'a été créé sur ce plan.
Liste des objets
| Nom de l'objet | Nombre |
|---|---|
| Armoire - penderie 150 cm | 1 |
| Armoire - penderie 200 cm | 4 |
| Bureau 100 X 50 cm | 1 |
| Commode tiroirs 120 x 50 cm | 1 |
| Eclairage applique | 1 |
| Eclairage spot | 1 |
| Fauteuil crapaud | 2 |
| Interrupteur | 2 |
| Interrupteur va et vient | 2 |
| Lit queen size | 1 |
| Prise | 2 |
| Prise commandée | 2 |
| Prise de terre | 1 |
| Prise haute | 1 |
| Prise réseau RJ45 | 1 |
| Table de chevet | 2 |
Lien vers ce plan
Lien pour partager le plan Chambre 1 TMA1 Bis
Image du plan
Copier et coller le code ci dessous
Partagez ce plan
Vous aimez ce plan ?
Cliquez sur J'aime et gagnez des fonctionnalités