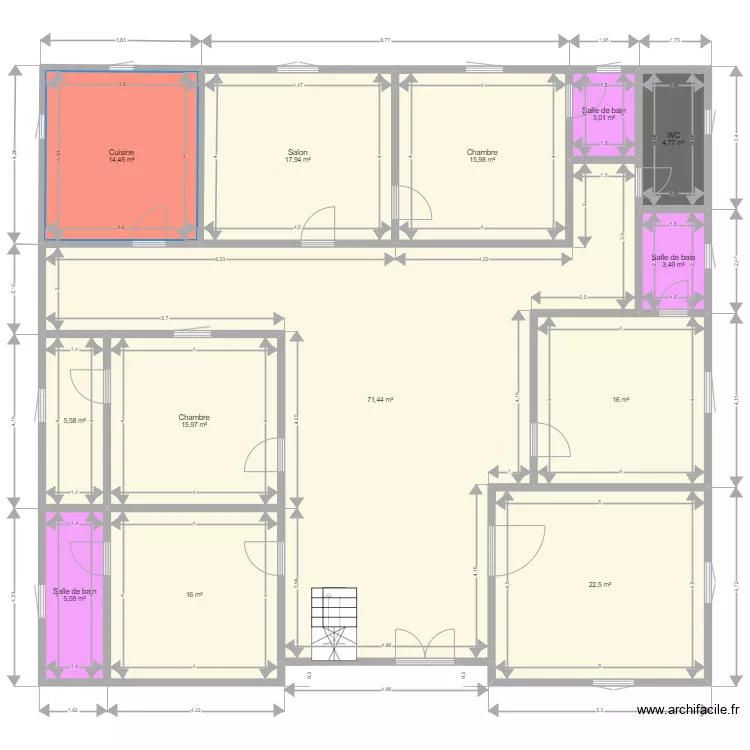
Plan de fondation d\'une maison T7
Plan de 13 et 213 m²

Description
Plan de construction d'une maison individuelle
Détails du plan
- Plan commencé le 17/01/2026 à 14:28 par ABDOUJOOF
- Modifié le 07/02/2026 à 14:58 par ABDOUJOOF
- Partage : Utilisation
Mots clés
Liste des pièces
Liste des objets
| Nom de l'objet | Nombre |
|---|---|
| Escalier demi tournant | 1 |
Lien vers ce plan
Lien pour partager le plan Plan de fondation d\'une maison T7
Image du plan
Copier et coller le code ci dessous
Partagez ce plan
Vous aimez ce plan ?
Cliquez sur J'aime et gagnez des fonctionnalités
Plans de 13 pièces et de 200 à 220 m2
Voir tout les plans de 13 pièces et de 200 à 220 m2
Plans de 13 pièces
Voir tout les plans de 13 pièces
Plans de 200 à 220 m2
Voir tout les plans de 200 à 220 m2