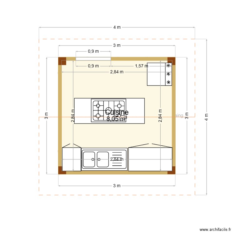
PALTON CARBET CUISINE
Plan de

Détails du plan
- Plan commencé le 07/10/2025 à 17:55 par ECO FORESTRY
- Modifié le 07/10/2025 à 17:55 par ECO FORESTRY
- Partage : Utilisation
Mots clés
Liste des pièces
Aucune pièce n'a été créé sur ce plan.
Liste des objets
| Nom de l'objet | Nombre |
|---|---|
| Bar | 1 |
| Congélateur armoire 200 L | 1 |
| Évier 2 bacs avec meuble | 1 |
| Meuble cuisine 2 portes | 2 |
| Piano de cuisson 5 foyers | 1 |
| Poteau béton | 4 |
| Poteau bois | 4 |
| Toiture 2 pans | 1 |
Lien vers ce plan
Lien pour partager le plan PALTON CARBET CUISINE
Image du plan
Copier et coller le code ci dessous
Partagez ce plan
Vous aimez ce plan ?
Cliquez sur J'aime et gagnez des fonctionnalités