Gaubert
Plan de

Détails du plan
- Plan commencé le 05/11/2025 à 15:49 par BEG81
- Modifié le 05/11/2025 à 16:05 par BEG81
- Partage : Utilisation
Mots clés
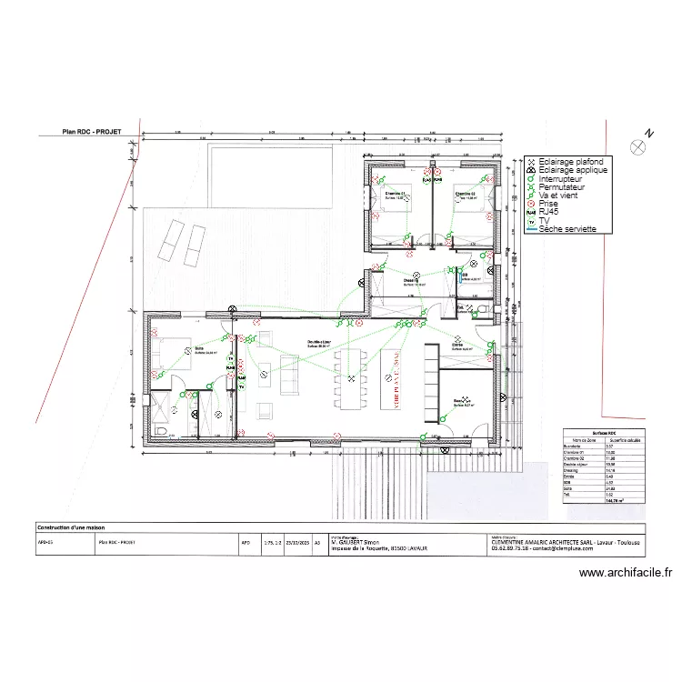
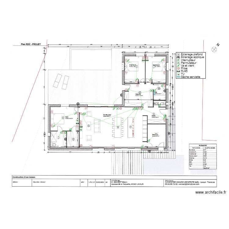
Liste des pièces
Aucune pièce n'a été créé sur ce plan.
Liste des objets
| Nom de l'objet | Nombre |
|---|---|
| Texte | 1 |
| Alim collecteur | 27 |
| Eclairage applique | 7 |
| Eclairage plafond | 14 |
| Interrupteur | 11 |
| Permutateur | 3 |
| Prise TV | 3 |
| Rectangle | 1 |
| RJ45 | 5 |
| Sèche-serviettes | 3 |
| Va et vient | 16 |
| VOIR PLAN CUISINE | 1 |
Lien vers ce plan
Lien pour partager le plan Gaubert
Image du plan
Copier et coller le code ci dessous
Partagez ce plan
Vous aimez ce plan ?
Cliquez sur J'aime et gagnez des fonctionnalités