plan nathalie 4
Plan de

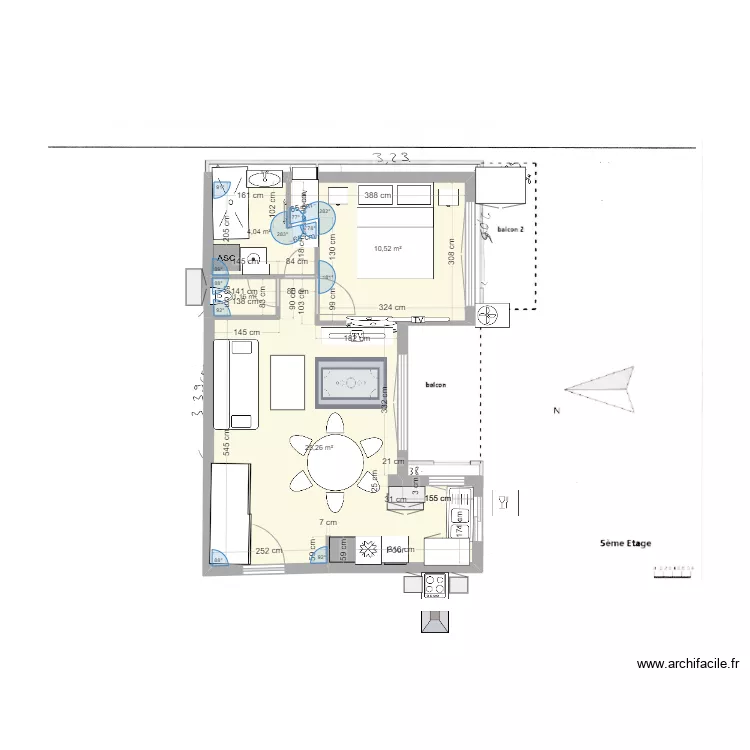
Description
1/ dans la cuisine :
meuble d'angle de 120cm avec au dessus la plaque électrique et la hotte
deux meubles hauts de chaque côté de la hotte de 0.4cm
peut-être prévoir un meuble bas entre la colonne four et la plaque de cuisson (meuble d'angle)
Machine à laver la vaisselle à mettre sous l'évier côté égouttoir
Meuble bas de 0.8cm avec meuble haut de 0.8cm en face de la plaque de cuisson
2/ dans les WC :
WC suspendu
Meuble haut au-dessus de 0.8 cm
3/ dans la SDB :
Douche à l'italienne profondeur 0.7cm et longueur : 1,62cm
meuble sous lavabo 0.8cm avec 2 tiroirs en face de l'entrée
Machine à laver le linge en entrant à gauche
sèche-serviettes électrique en face de la douche à l'italienne
3/ chambre :
cloison à déplacer entre SDB et chambre de 0.8cm pour créer une penderie avec tiroirs dans la chambre
4/ balcon chambre :
Installer la climatisation réversible silencieuse muti-split :
moteur sur le balcon chambre
et deux splits chambre et salon même mur
Détails du plan
- Plan commencé le 08/01/2024 à 16:55 par zanzouri
- Modifié le 08/01/2024 à 16:55 par zanzouri
- Partage : Utilisation
Mots clés
Liste des pièces
Aucune pièce n'a été créé sur ce plan.
Liste des objets
Lien vers ce plan
Lien pour partager le plan plan nathalie 4
Image du plan
Copier et coller le code ci dessous
Partagez ce plan
Vous aimez ce plan ?
Cliquez sur J'aime et gagnez des fonctionnalités