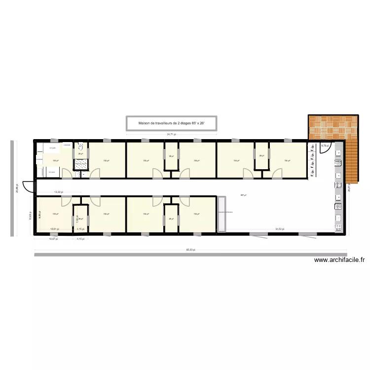
Maison travailleurs 2 étages de 20 (40 travailleurs)
Plan de 18 et 196 m²

Détails du plan
- Plan commencé le 24/03/2026 à 20:01 par PlanPoly
- Modifié le 25/03/2026 à 13:31 par PlanPoly
- Partage : Utilisation
Mots clés
Liste des pièces
- Laveuses / sécheuses
- Maison de travailleurs de 2 étages 85' x 26'
Liste des objets
| Nom de l'objet | Nombre |
|---|---|
| Cabine douche | 1 |
| Commode tiroirs 80 x 50 cm | 2 |
| Dalle de terrasse bois | 8 |
| Escalier droit | 1 |
| Evier 1 vasque | 4 |
| Lit 1 pers | 2 |
| Meuble 1 lavabo integré | 2 |
| Plaque gaz | 4 |
| Réfrigérateur | 4 |
| WC standard | 1 |
Lien vers ce plan
Lien pour partager le plan Maison travailleurs 2 étages de 20 (40 travailleurs)
Image du plan
Copier et coller le code ci dessous
Partagez ce plan
Vous aimez ce plan ?
Cliquez sur J'aime et gagnez des fonctionnalités
Plans de 18 pièces et de 190 à 210 m2
Voir tout les plans de 18 pièces et de 190 à 210 m2
Plans de 18 pièces
Voir tout les plans de 18 pièces
Plans de 190 à 210 m2
Voir tout les plans de 190 à 210 m2