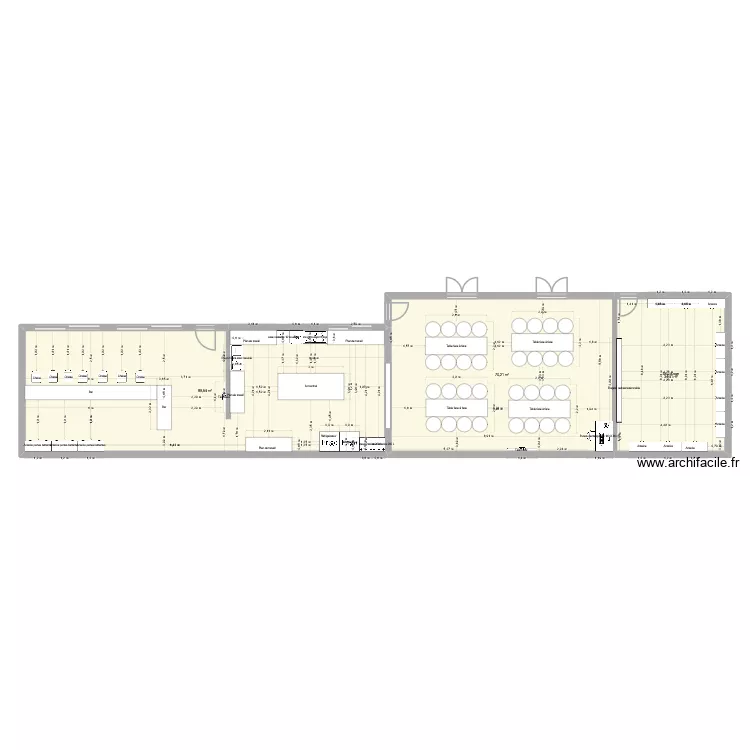
Club House Foot
Plan de 3 et 194 m²

Description
Club House Foot
Détails du plan
- Plan commencé le 13/03/2026 à 09:47 par magetmax
- Modifié le 13/03/2026 à 09:47 par magetmax
- Partage : Utilisation
Mots clés
Liste des pièces
- Stockage
Liste des objets
| Nom de l'objet | Nombre |
|---|---|
| Armoire | 10 |
| Armoire portes battantes | 3 |
| Bar | 2 |
| Bureau rectangulaire 140 X 80 cm | 1 |
| Chaise | 7 |
| Congélateur armoire 200 L | 2 |
| Etagère redimenssionnable | 1 |
| Évier 2 bacs avec meuble | 1 |
| Four | 1 |
| Ilot central | 1 |
| Lave vaisselle 12 couverts | 1 |
| Piano de cuisson 6 foyers | 1 |
| Plan de travail | 4 |
| Réfrigérateur | 2 |
| Table face à face | 4 |
| Téléviseur | 2 |
Lien vers ce plan
Lien pour partager le plan Club House Foot
Image du plan
Copier et coller le code ci dessous
Partagez ce plan
Vous aimez ce plan ?
Cliquez sur J'aime et gagnez des fonctionnalités
Plans de 3 pièces et de 180 à 200 m2
Voir tout les plans de 3 pièces et de 180 à 200 m2
Plans de 3 pièces
Voir tout les plans de 3 pièces
Plans de 180 à 200 m2
Voir tout les plans de 180 à 200 m2