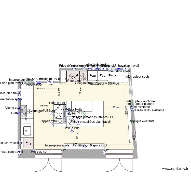
RdC Cuisine prises
Plan de

Détails du plan
- Plan commencé le 03/01/2024 à 17:58 par ColonelOlrik
- Modifié le 03/01/2024 à 19:33 par ColonelOlrik
- Partage : Utilisation
Mots clés
Liste des pièces
Aucune pièce n'a été créé sur ce plan.
Liste des objets
Lien vers ce plan
Lien pour partager le plan RdC Cuisine prises
Image du plan
Copier et coller le code ci dessous
Partagez ce plan
Vous aimez ce plan ?
Cliquez sur J'aime et gagnez des fonctionnalités