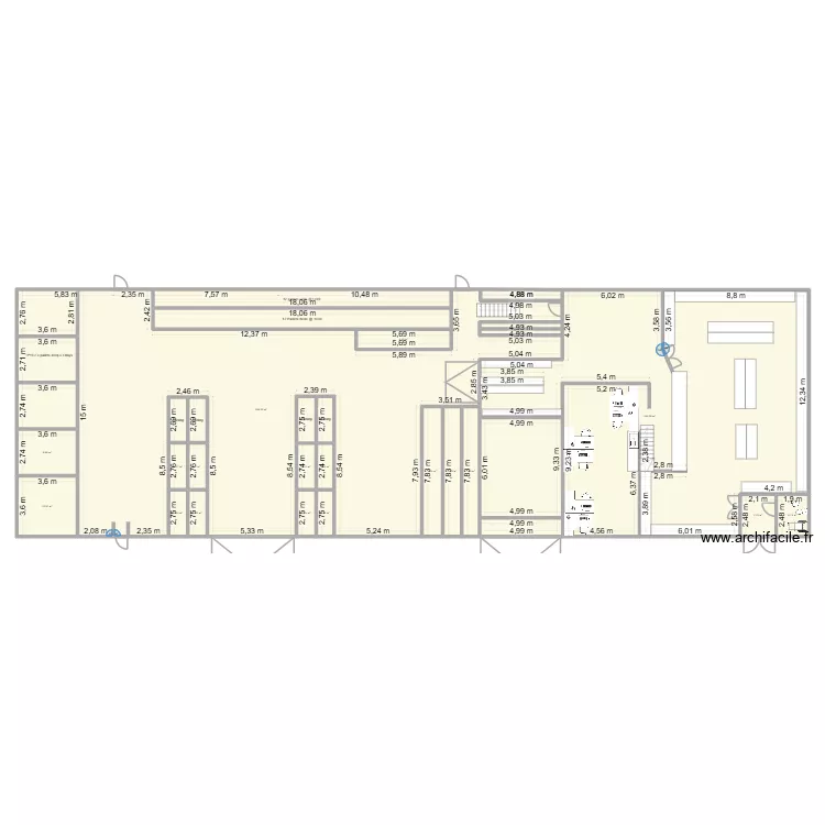
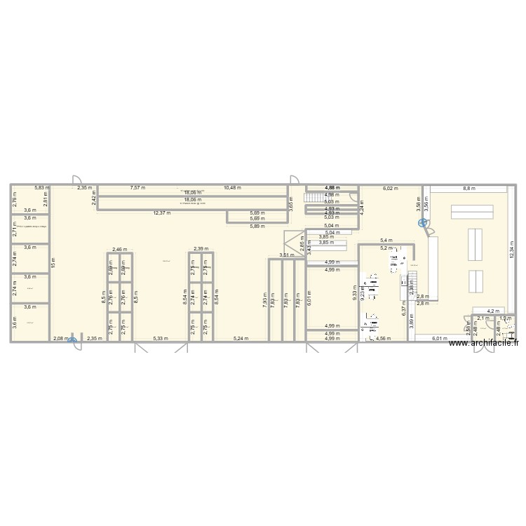
Temp warehouse with shop and offices / 35m x 15m warehouse not completed yet
Plan de

Détails du plan
- Plan commencé le 10/10/2025 à 17:00 par Bobthedesigner
- Modifié le 23/10/2025 à 14:23 par Bobthedesigner
- Partage : Utilisation
Mots clés
Liste des pièces
Aucune pièce n'a été créé sur ce plan.
Liste des objets
| Nom de l'objet | Nombre |
|---|---|
| Bar | 18 |
| Bureau 180 X 140 cm | 3 |
| Bureau 180 X 140 cm | 3 |
| Escalier droit | 1 |
| Escalier quart tournant | 1 |
| Évier 1 bac avec meuble | 1 |
| Fauteuil roulant | 1 |
| Lavabo | 1 |
| WC standard | 1 |
Lien vers ce plan
Lien pour partager le plan Temp warehouse with shop and offices / 35m x 15m warehouse not completed yet
Image du plan
Copier et coller le code ci dessous
Partagez ce plan
Vous aimez ce plan ?
Cliquez sur J'aime et gagnez des fonctionnalités