EIFFAGE CHANTIER RIVE DE GIER
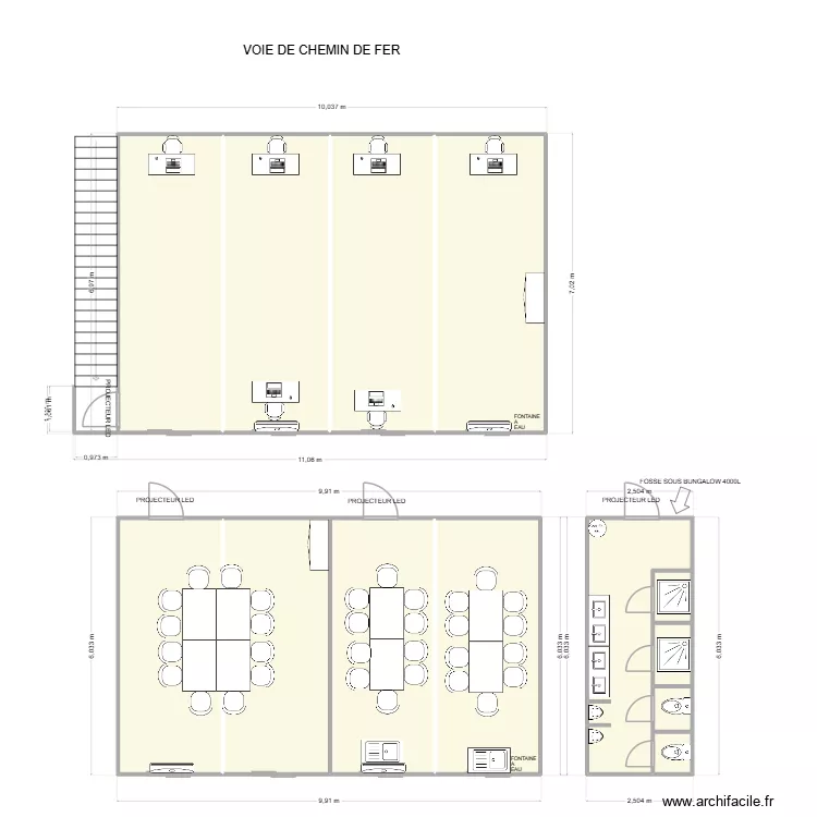
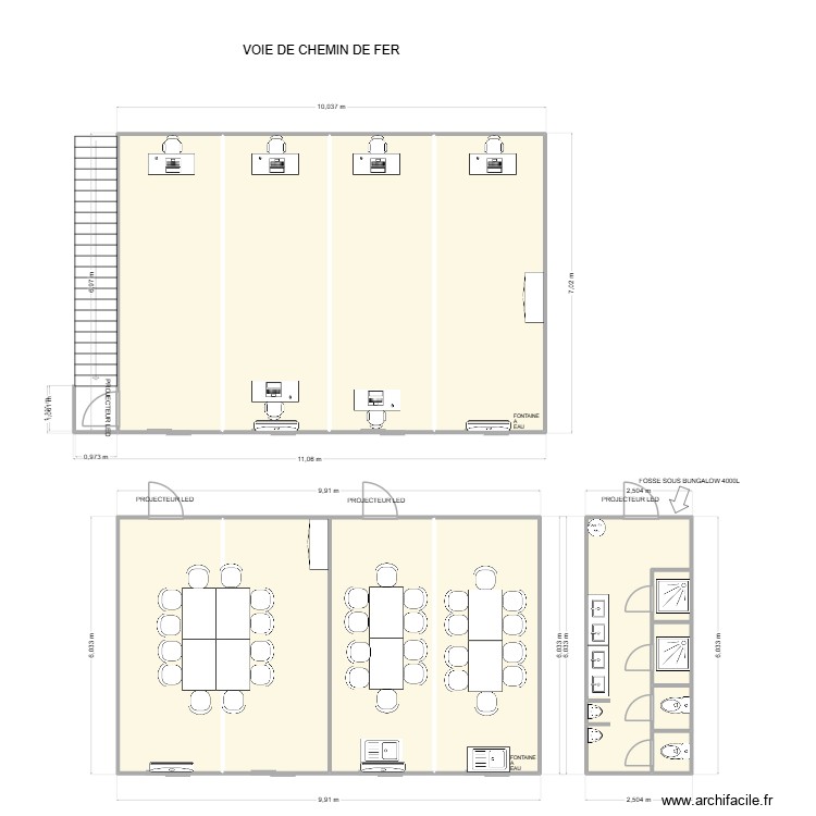
Plan de 13 et 139 m²

Détails du plan
- Plan commencé le 13/02/2026 à 15:06 par aca69780
- Modifié le 17/02/2026 à 14:55 par aca69780
- Partage : Utilisation
Mots clés
Liste des pièces
Liste des objets
| Nom de l'objet | Nombre |
|---|---|
| Texte | 8 |
| Armoire portes battantes | 2 |
| Bureau 100 X 50 cm | 6 |
| Chaise | 32 |
| Chauffe eau | 1 |
| Climatiseur Split interieur | 4 |
| Escalier droit | 1 |
| Évier 1 bac avec meuble | 2 |
| Flêche | 1 |
| Meuble 2 lavabos | 2 |
| Receveur douche | 2 |
| Table de bureau | 8 |
| Urinoir | 2 |
| WC standard | 2 |
Lien vers ce plan
Lien pour partager le plan EIFFAGE CHANTIER RIVE DE GIER
Image du plan
Copier et coller le code ci dessous
Partagez ce plan
Vous aimez ce plan ?
Cliquez sur J'aime et gagnez des fonctionnalités
Plans de 13 pièces et de 130 à 150 m2
Voir tout les plans de 13 pièces et de 130 à 150 m2
Plans de 13 pièces
Voir tout les plans de 13 pièces
Plans de 130 à 150 m2
Voir tout les plans de 130 à 150 m2