Bas dernier Isabelle
Plan de

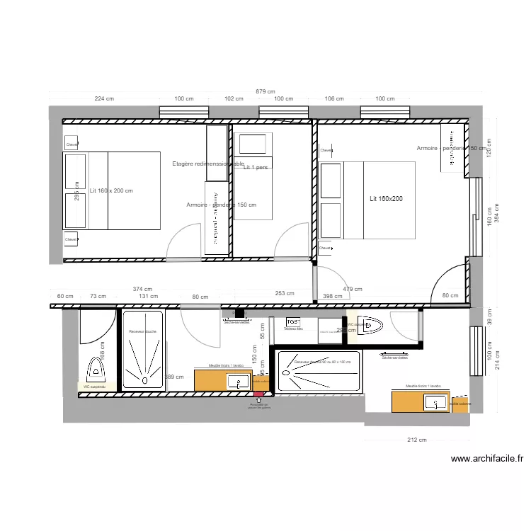
Détails du plan
- Plan commencé le 08/09/2023 à 16:22 par Jean4906
- Modifié le 08/09/2023 à 19:00 par Jean4906
- Partage : Utilisation
Mots clés
Liste des pièces
Aucune pièce n'a été créé sur ce plan.
Liste des objets
| Nom de l'objet | Nombre |
|---|---|
| Texte | 1 |
| Armoire - penderie 150 cm | 2 |
| Etagère redimenssionnable | 1 |
| Flêche | 1 |
| Lit 1 pers | 1 |
| Lit queen size | 2 |
| Meuble 1 lavabo integré | 2 |
| Meuble colonne | 2 |
| Meuble tiroir | 2 |
| Plan de travail | 1 |
| POTEAU | 1 |
| Receveur douche | 2 |
| Rectangle | 1 |
| Sèche-serviettes électrique à inertie 1000 W | 2 |
| Table de chevet | 4 |
| Tableau électrique Basse Tension | 1 |
| WC suspendu | 2 |
Lien vers ce plan
Lien pour partager le plan Bas dernier Isabelle
Image du plan
Copier et coller le code ci dessous
Partagez ce plan
Vous aimez ce plan ?
Cliquez sur J'aime et gagnez des fonctionnalités