MALMOUSQUE RENO pour laura
Plan de

Détails du plan
- Plan commencé le 15/01/2021 à 10:51 par RENOlaura
- Modifié le 15/01/2021 à 10:51 par RENOlaura
- Partage : Utilisation
Mots clés
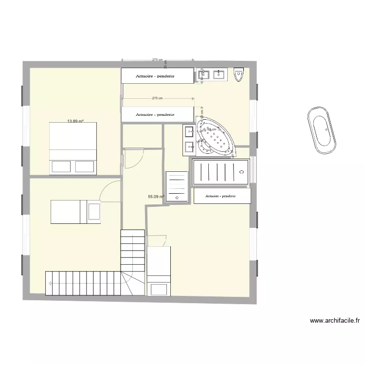
Liste des pièces
Aucune pièce n'a été créé sur ce plan.
Liste des objets
| Nom de l'objet | Nombre |
|---|---|
| Armoire - penderie 200 cm | 3 |
| Baignoire balneo spa | 1 |
| Baignoire îlot ovale | 1 |
| Escalier quart tournant | 1 |
| Lit 1 pers | 2 |
| Lit King Size | 1 |
| Meuble 2 lavabos | 2 |
| Receveur douche | 2 |
| WC suspendu | 1 |
Lien vers ce plan
Lien pour partager le plan MALMOUSQUE RENO pour laura
Image du plan
Copier et coller le code ci dessous
Partagez ce plan
Vous aimez ce plan ?
Cliquez sur J'aime et gagnez des fonctionnalités