Warvillers ind G
Plan de

Détails du plan
- Plan commencé le 13/01/2021 à 23:24 par gougnou80
- Modifié le 13/01/2021 à 23:25 par gougnou80
- Partage : Utilisation
Mots clés
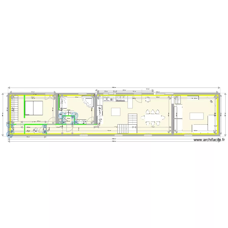
Liste des pièces
Aucune pièce n'a été créé sur ce plan.
Liste des objets
| Nom de l'objet | Nombre |
|---|---|
| Baignoire d'angle | 1 |
| Canapé 3 places | 1 |
| Canapé d'angle gauche | 1 |
| Chauffe eau | 1 |
| Escalier droit | 4 |
| Évier 2 bacs | 1 |
| Four | 1 |
| Ilot central | 1 |
| Lave linge hublot | 2 |
| Lave vaisselle 12 couverts | 1 |
| Lit queen size | 1 |
| Meuble 2 vasques | 1 |
| Piano de cuisson 6 foyers | 1 |
| Plan de travail | 3 |
| Poêle à granulés | 1 |
| Receveur douche | 1 |
| Rectangle | 2 |
| Refrigerateur americain | 1 |
| Table 6 - 8 pers 180 x 80 cm | 1 |
| Table basse | 1 |
| Téléviseur | 1 |
| WC suspendu | 1 |
Lien vers ce plan
Lien pour partager le plan Warvillers ind G
Image du plan
Copier et coller le code ci dessous
Partagez ce plan
Vous aimez ce plan ?
Cliquez sur J'aime et gagnez des fonctionnalités