Plan Etage
Plan de

Détails du plan
- Plan commencé le 27/09/2018 à 09:43 par panicolas
- Modifié le 09/05/2024 à 10:58 par panicolas
- Partage : Utilisation
Mots clés
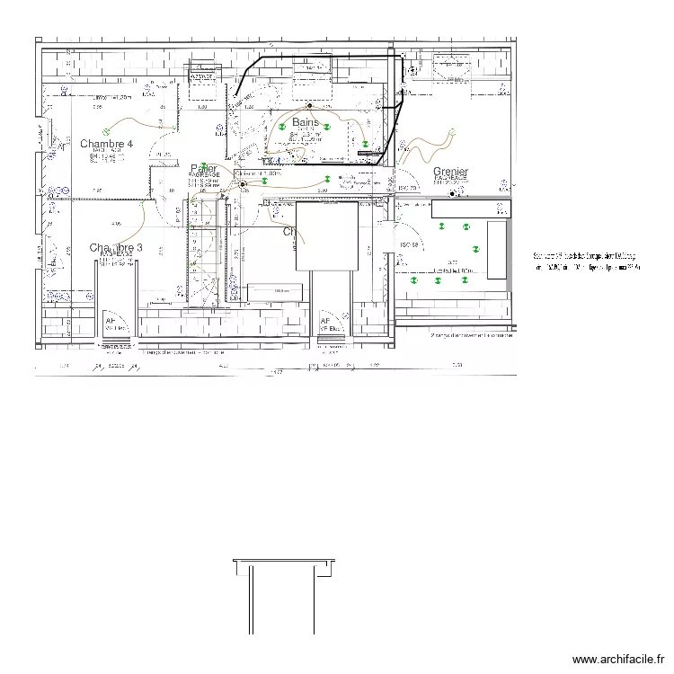
Liste des pièces
Aucune pièce n'a été créé sur ce plan.
Liste des objets
| Nom de l'objet | Nombre |
|---|---|
| Arrivée ECS | 4 |
| Boite de dérivation | 3 |
| Eclairage applique | 3 |
| Eclairage plafond | 4 |
| Eclairage spot | 12 |
| EF3 | 4 |
| Etagère redimenssionnable | 2 |
| EVAC EU | 3 |
| Interrupteur | 6 |
| Interrupteur double | 1 |
| Interrupteur double va et vient | 1 |
| Prise 10 16 A | 17 |
| Prise haute | 1 |
| Prise réseau RJ45 | 3 |
| Prise TV, SAT, FM | 3 |
| Prise volet roulant | 4 |
| Rectangle | 3 |
| VMC bouche d'extraction | 3 |
Lien vers ce plan
Lien pour partager le plan Plan Etage
Image du plan
Copier et coller le code ci dessous
Partagez ce plan
Vous aimez ce plan ?
Cliquez sur J'aime et gagnez des fonctionnalités