Local Bisons 3e version pt d'accroche
Plan de

Détails du plan
- Plan commencé le 12/05/2022 à 15:00 par bugdeluxe
- Modifié le 12/05/2022 à 15:00 par bugdeluxe
- Partage : Utilisation
Mots clés
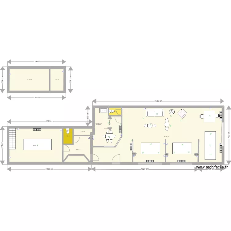
Liste des pièces
Aucune pièce n'a été créé sur ce plan.
Liste des objets
| Nom de l'objet | Nombre |
|---|---|
| Canapé 3 places | 1 |
| Chaise de bureau | 2 |
| Convecteur électrique | 7 |
| Eclairage plafond | 19 |
| Escalier droit | 1 |
| Évier 1 bac avec meuble | 1 |
| Fauteuil 1 place | 1 |
| Fauteuil crapaud | 1 |
| Interrupteur | 2 |
| Prise | 20 |
| Table 4 - 6 pers. 80 x 125 cm | 1 |
| Table de bureau | 5 |
| Table ronde 2 pers. 60 x 60 cm | 2 |
| WC standard | 2 |
Lien vers ce plan
Lien pour partager le plan Local Bisons 3e version pt d'accroche
Image du plan
Copier et coller le code ci dessous
Partagez ce plan
Vous aimez ce plan ?
Cliquez sur J'aime et gagnez des fonctionnalités