
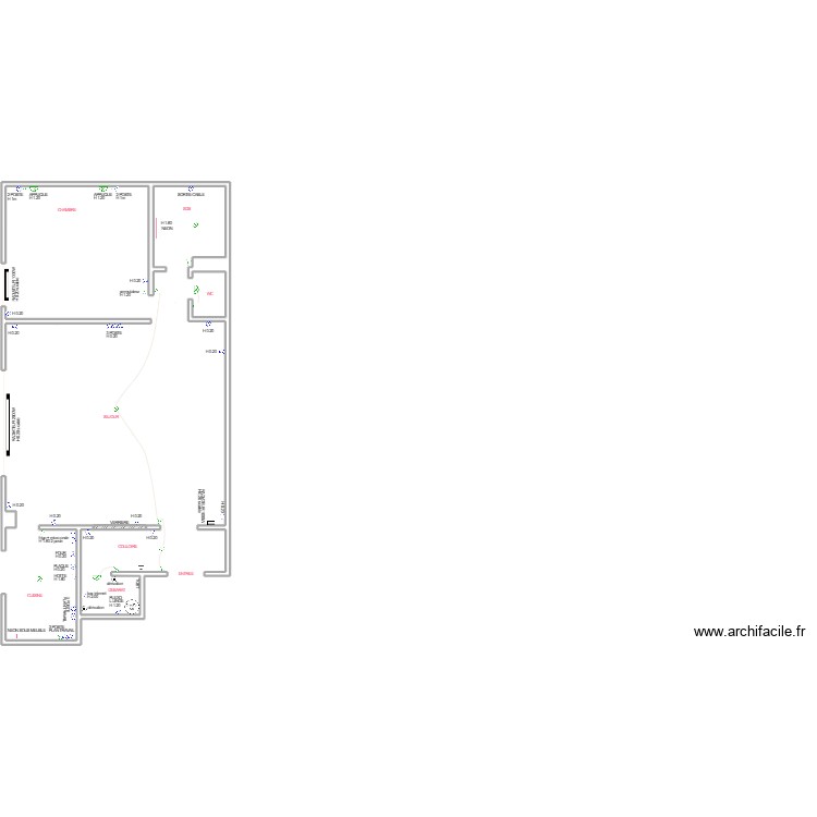
emplacement inter + pc
| Nom de l'objet | Nombre |
|---|---|
| Texte | 51 |
| Boite de dérivation | 2 |
| Chauffe eau | 1 |
| Compteur électrique | 1 |
| Convecteur électrique | 3 |
| Eclairage applique | 4 |
| Eclairage plafond | 4 |
| Eclairage Tube à fluorescence double | 2 |
| Interrupteur | 9 |
| Interrupteur double | 2 |
| Interrupteur double va et vient | 1 |
| Prise | 32 |
| Prise four | 1 |
| Prise plaque de cuisson | 1 |
Lien pour partager le plan appartement 1
Copier et coller le code ci dessous
Cliquez sur J'aime et gagnez des fonctionnalités
Voir tout les plans de 0 pièce