ELO 12
Plan de

Détails du plan
- Plan commencé le 06/01/2022 à 00:06 par philippe 89
- Modifié le 06/01/2022 à 00:36 par philippe 89
- Partage : Utilisation
Mots clés
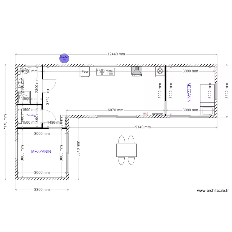
Liste des pièces
Aucune pièce n'a été créé sur ce plan.
Liste des objets
| Nom de l'objet | Nombre |
|---|---|
| Texte | 3 |
| Armoire - penderie 150 cm | 1 |
| Bar | 2 |
| Bureau 100 X 50 cm | 2 |
| Chauffe eau | 1 |
| Convecteur électrique | 2 |
| Etagère redimenssionnable | 3 |
| Évier 2 bacs | 1 |
| Four | 1 |
| Hotte murale | 1 |
| Lit 1 pers | 1 |
| Lit double standard | 1 |
| Meuble lavabo intégré | 1 |
| Plan de travail | 1 |
| Plaque gaz | 1 |
| Receveur douche | 1 |
| Réfrigérateur | 1 |
| Table 4 - 6 pers. 80 x 125 cm | 1 |
| Tableau électrique Basse Tension | 1 |
| WC standard | 1 |
Lien vers ce plan
Lien pour partager le plan ELO 12
Image du plan
Copier et coller le code ci dessous
Partagez ce plan
Vous aimez ce plan ?
Cliquez sur J'aime et gagnez des fonctionnalités