Maison Aische - SàM & Salon
Plan de

Détails du plan
- Plan commencé le 06/03/2023 à 11:43 par VincentGodard
- Modifié le 11/11/2023 à 11:22 par VincentGodard
- Partage : Utilisation
Mots clés
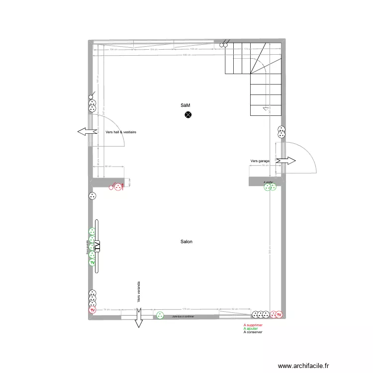
Liste des pièces
Aucune pièce n'a été créé sur ce plan.
Liste des objets
| Nom de l'objet | Nombre |
|---|---|
| Texte | 11 |
| Eclairage plafond | 1 |
| Escalier quart tournant | 1 |
| Flêche | 3 |
| Interrupteur | 4 |
| Prise | 19 |
| Prise haute | 1 |
| Prise TV | 3 |
| Téléviseur | 1 |
Lien vers ce plan
Lien pour partager le plan Maison Aische - SàM & Salon
Image du plan
Copier et coller le code ci dessous
Partagez ce plan
Vous aimez ce plan ?
Cliquez sur J'aime et gagnez des fonctionnalités