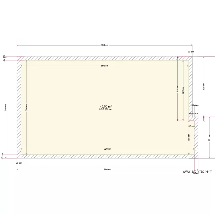
Côtes Pour toiture BOLZAN
Plan de

Description
Haut du 1er étage sous toiture
Détails du plan
- Plan commencé le 04/01/2022 à 23:26 par Fred3x33
- Modifié le 05/01/2022 à 13:46 par Fred3x33
- Partage : Utilisation
Mots clés
Liste des pièces
Aucune pièce n'a été créé sur ce plan.
Liste des objets
Aucun objet n'a été utilisé sur ce plan.
Lien vers ce plan
Lien pour partager le plan Côtes Pour toiture BOLZAN
Image du plan
Copier et coller le code ci dessous
Partagez ce plan
Vous aimez ce plan ?
Cliquez sur J'aime et gagnez des fonctionnalités