Le Verdon 1
Plan de

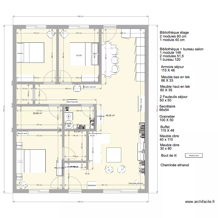
Détails du plan
- Plan commencé le 14/09/2020 à 19:00 par Kaela
- Modifié le 14/09/2020 à 19:08 par Kaela
- Partage : Utilisation
Mots clés
Liste des pièces
Aucune pièce n'a été créé sur ce plan.
Liste des objets
| Nom de l'objet | Nombre |
|---|---|
| Texte | 13 |
| Armoire - penderie 150 cm | 2 |
| Bar | 1 |
| Bibliothèque | 6 |
| Buffet | 4 |
| Canapé méridienne droite | 1 |
| Chaise | 8 |
| Chauffe eau | 1 |
| Commode tiroirs 120 x 50 cm | 6 |
| Fauteuil crapaud | 3 |
| Lave linge hublot | 1 |
| Lit double standard | 1 |
| Lit queen size | 2 |
| Meuble cuisine 1 porte | 6 |
| Meuble cuisine d'angle | 1 |
| Rectangle | 2 |
| Table basse | 1 |
| Table de bureau | 1 |
| Téléviseur | 1 |
Lien vers ce plan
Lien pour partager le plan Le Verdon 1
Image du plan
Copier et coller le code ci dessous
Partagez ce plan
Vous aimez ce plan ?
Cliquez sur J'aime et gagnez des fonctionnalités