Petit Rezole - 1°étage
Plan de

Détails du plan
- Plan commencé le 23/01/2023 à 21:32 par Rezole-03220
- Modifié le 01/03/2023 à 18:17 par Rezole-03220
- Partage : Utilisation
Mots clés
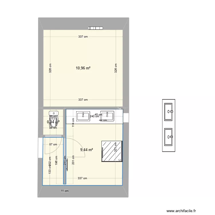
Liste des pièces
Aucune pièce n'a été créé sur ce plan.
Liste des objets
| Nom de l'objet | Nombre |
|---|---|
| Cabine douche | 1 |
| Interrupteur va et vient | 1 |
| Meuble 1 lavabo integré | 2 |
| Meuble 2 lavabos | 1 |
| Plan de travail | 1 |
| Radiateur à inertie 2500W | 1 |
| Sèche-serviettes électrique à inertie 1000 W | 1 |
| WC standard | 1 |
Lien vers ce plan
Lien pour partager le plan Petit Rezole - 1°étage
Image du plan
Copier et coller le code ci dessous
Partagez ce plan
Vous aimez ce plan ?
Cliquez sur J'aime et gagnez des fonctionnalités