rdc balthazar
Plan de

Détails du plan
- Plan commencé le 30/08/2021 à 06:26 par romiti
- Modifié le 25/09/2021 à 15:59 par romiti
- Partage : Utilisation
Mots clés
Liste des pièces
Aucune pièce n'a été créé sur ce plan.
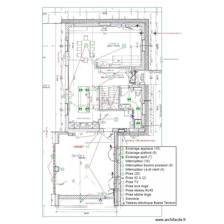
Liste des objets
| Nom de l'objet | Nombre |
|---|---|
| Texte | 10 |
| Légende | 1 |
| Boussole 1 | 3 |
| Chaudière à fioul | 1 |
| Eclairage applique | 10 |
| Eclairage plafond | 9 |
| Eclairage spot | 7 |
| Interrupteur | 10 |
| Interrupteur bouton poussoir | 9 |
| Interrupteur va et vient | 4 |
| Meuble lavabo intégré | 1 |
| Prise | 25 |
| Prise 32 A | 2 |
| Prise lave linge | 1 |
| Prise réseau RJ45 | 1 |
| Prise sèche linge | 1 |
| Prise TV | 1 |
| Receveur douche | 1 |
| Sonnerie | 1 |
| Tableau électrique Basse Tension | 1 |
| WC suspendu | 1 |
Lien vers ce plan
Lien pour partager le plan rdc balthazar
Image du plan
Copier et coller le code ci dessous
Partagez ce plan
Vous aimez ce plan ?
Cliquez sur J'aime et gagnez des fonctionnalités