couloir
Plan de

Description
implanter
Détails du plan
- Plan commencé le 31/01/2023 à 11:02 par rabols
- Modifié le 15/02/2023 à 15:27 par rabols
- Partage : Utilisation
Mots clés
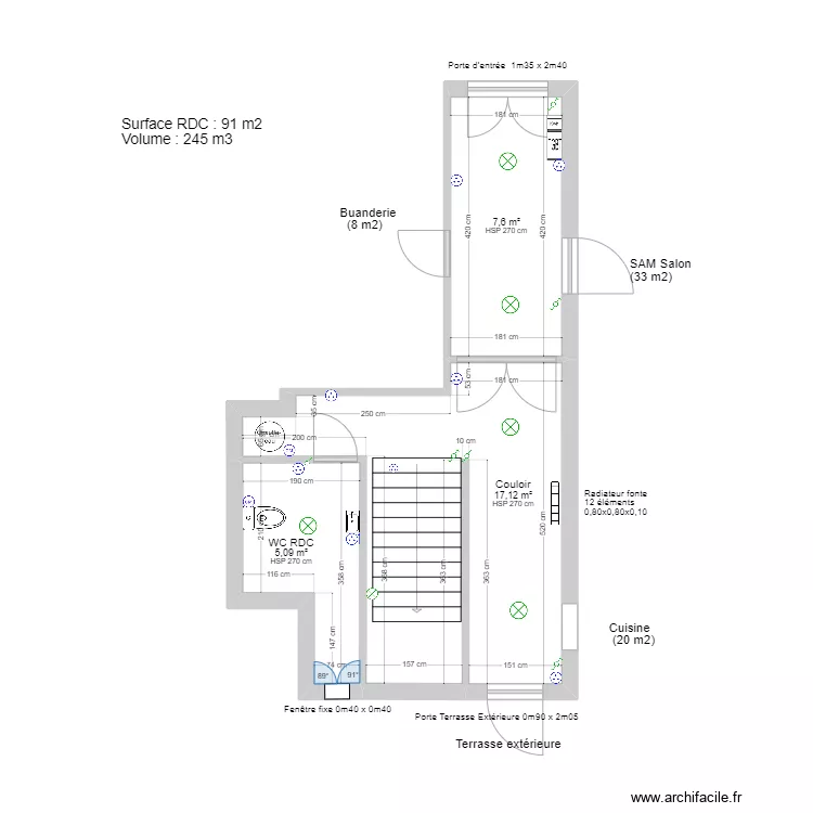
Liste des pièces
Aucune pièce n'a été créé sur ce plan.
Liste des objets
| Nom de l'objet | Nombre |
|---|---|
| Texte | 9 |
| Chauffe eau | 1 |
| Compteur électrique | 1 |
| Eclairage plafond | 6 |
| Escalier droit | 1 |
| Interrupteur | 1 |
| Interrupteur va et vient | 5 |
| Lave main | 1 |
| Prise | 7 |
| Prise Cumulus | 2 |
| Prise haute | 1 |
| Radiateur à inertie 2000W | 1 |
| Tableau électrique Basse Tension | 1 |
| WC standard | 1 |
Lien vers ce plan
Lien pour partager le plan couloir
Image du plan
Copier et coller le code ci dessous
Partagez ce plan
Vous aimez ce plan ?
Cliquez sur J'aime et gagnez des fonctionnalités