Sale de bain
Plan de

Détails du plan
- Plan commencé le 30/11/2020 à 11:38 par byorg
- Modifié le 31/03/2021 à 08:58 par byorg
- Partage : Utilisation
Mots clés
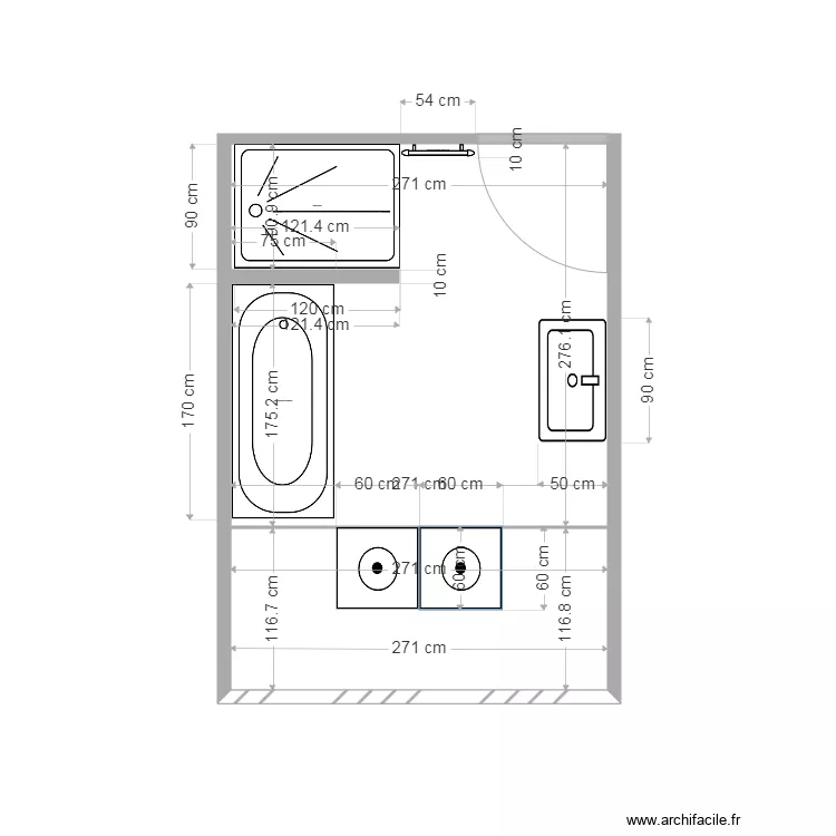
Liste des pièces
Aucune pièce n'a été créé sur ce plan.
Liste des objets
| Nom de l'objet | Nombre |
|---|---|
| Baignoire rectangulaire (encastrable) | 1 |
| Lave linge hublot | 2 |
| Meuble 1 lavabo integré | 1 |
| Receveur douche | 1 |
| Sèche-serviettes électrique à inertie 1000 W | 1 |
Lien vers ce plan
Lien pour partager le plan Sale de bain
Image du plan
Copier et coller le code ci dessous
Partagez ce plan
Vous aimez ce plan ?
Cliquez sur J'aime et gagnez des fonctionnalités