Salon R Aguilera
Plan de 1 et 16 m²

Description
Projet Home Cinéma face Canapé
Détails du plan
- Plan commencé le 11/04/2026 à 11:32 par RAGUILERA
- Modifié le 11/04/2026 à 11:32 par RAGUILERA
- Partage : Utilisation
Mots clés
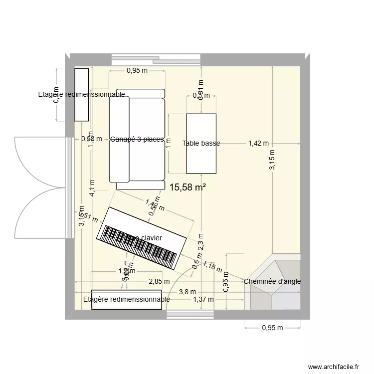
Liste des pièces
Liste des objets
| Nom de l'objet | Nombre |
|---|---|
| Canapé 3 places | 1 |
| Cheminée d'angle | 1 |
| Etagère redimenssionnable | 2 |
| Piano clavier | 1 |
| Table basse | 1 |
Lien vers ce plan
Lien pour partager le plan Salon R Aguilera
Image du plan
Copier et coller le code ci dessous
Partagez ce plan
Vous aimez ce plan ?
Cliquez sur J'aime et gagnez des fonctionnalités
Plans de 1 pièce et de 10 à 20 m2
Voir tout les plans de 1 pièce et de 10 à 20 m2
Plans de 1 pièce
Voir tout les plans de 1 pièce
Plans de 10 à 20 m2
Voir tout les plans de 10 à 20 m2