Bourg 19 SANS R1B R2 cuisine provisoire
Plan de

Description
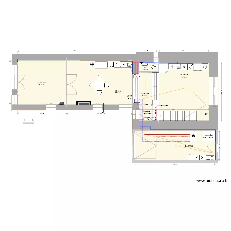
Rénovation d'une maison de bourg. Une partie principale de quarante cinq m² au sol sur 2 niveau datant de 1930 collée à une partie ancienne du seizième siècle de trente cinq m² sur 2 niveaux. Le tout sur un terrain de quatre cent m².
Détails du plan
- Plan commencé le 28/07/2022 à 11:14 par Yvan Le Berre
- Modifié le 05/08/2022 à 17:05 par Yvan Le Berre
- Partage : Utilisation
Mots clés
Liste des pièces
Aucune pièce n'a été créé sur ce plan.
Liste des objets
Lien vers ce plan
Lien pour partager le plan Bourg 19 SANS R1B R2 cuisine provisoire
Image du plan
Copier et coller le code ci dessous
Partagez ce plan
Vous aimez ce plan ?
Cliquez sur J'aime et gagnez des fonctionnalités