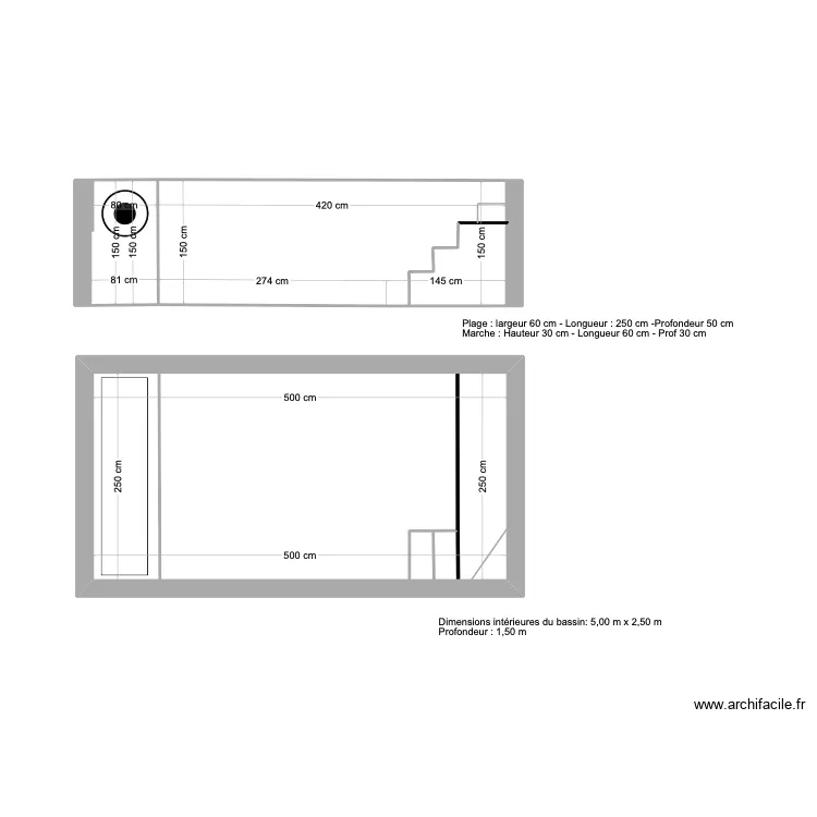
plan piscine 2
Plan de

Détails du plan
- Plan commencé le 10/03/2023 à 15:57 par larochellelocation
- Modifié le 15/06/2023 à 19:04 par larochellelocation
- Partage : Utilisation
Mots clés
Liste des pièces
Aucune pièce n'a été créé sur ce plan.
Liste des objets
| Nom de l'objet | Nombre |
|---|---|
| Texte | 2 |
| Boite de dérivation | 1 |
Lien vers ce plan
Lien pour partager le plan plan piscine 2
Image du plan
Copier et coller le code ci dessous
Partagez ce plan
Vous aimez ce plan ?
Cliquez sur J'aime et gagnez des fonctionnalités